Stettin: Zwei vermietbare Wohnungen in einer – ruhige Lage, hohe Renditechancen
209,000 € 222,000 €
Beschreibung
Attraktive Investitionsgelegenheit – Zwei Wohnungen in einer, perfektes Mietobjekt!
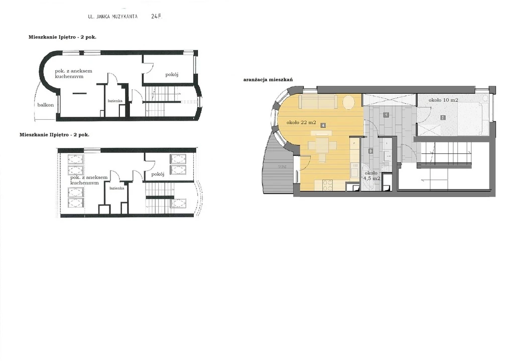
Dieses außergewöhnliche Angebot richtet sich an Investoren, die auf der Suche nach einer renditestarken Immobilie sind. Die voll ausgebaute Maisonettewohnung wurde clever in zwei eigenständige Wohneinheiten aufgeteilt – ideal für die Vermietung.
Die Immobilie umfasst auf zwei Etagen:
- 2 vollständig ausgestattete Küchen,
- 2 moderne Badezimmer,
- 4 helle und gut geschnittene Zimmer.
Die Wohnung befindet sich in einer ruhigen, gepflegten Wohngegend in Krzekowo, in einem geschlossenen und überwachten Wohnareal. Die Umgebung ist geprägt von Einfamilienhäusern, Doppelhaushälften und Reihenhäusern – ohne große Wohnblocks oder Hochhäuser in unmittelbarer Nähe. Das sorgt für ein angenehmes, familiäres Ambiente sowie hohe Lebensqualität.
Dank der naheliegenden vierspurigen Taczaka-Straße ist das Stadtzentrum bequem in wenigen Minuten erreichbar – sowohl mit dem Auto als auch mit öffentlichen Verkehrsmitteln.
Infrastruktur & Lagevorteile:
Die Wohnung bietet eine hervorragende Anbindung an städtische Einrichtungen und Freizeitangebote. In unmittelbarer Umgebung finden Sie zahlreiche Annehmlichkeiten, ideal für Bewohner jeden Alters:
- Bushaltestelle: ca. 250 m
- Restaurants & Cafés: ca. 300 m
- Taczaka-Straße (mehrspurige Hauptverbindung): ca. 350 m
- Park Przygodna: ca. 500 m – ideal für Spaziergänge und Erholung
- Supermärkte und Geschäfte: ca. 800 m
Besondere Merkmale:
- Zwei separate Wohneinheiten in einem Kauf
- Sehr gute Mietrendite möglich
- Ruhige und grüne Wohngegend
- Hohe Lebensqualität für Mieter oder Eigennutzer
- Umzäuntes und videoüberwachtes Wohnareal
- Gute Verkehrsanbindung zum Stadtzentrum
Diese Immobilie bietet ein hohes Investitionspotenzial und gleichzeitig sämtliche Vorteile einer ruhigen Wohnlage. Ob für Langzeitvermietung, studentische Wohngemeinschaften oder als Mehrgenerationenlösung – die Flexibilität und Ausstattung ermöglichen vielseitige Nutzungsmöglichkeiten.
Nutzen Sie jetzt die Gelegenheit und sichern Sie sich ein Objekt mit Perspektive!
Details
Immobilientyp: Wohnung
Verfügbar ab: 01.06.2019
Alter Preis: 945.051 PLN
Stadtteil – Wohnsiedlung: Pogodno II
Gesamtfläche: 94,98 m²
Grundstückeigentum: Eigentum
Gebäudetyp: Wohnblock
Baujahr: 2020
Standard: Sehr gut
Zustand des Gebäudes: Sehr gut
Wandmaterial: Ziegel
Küchentyp: Offene Küche
Anzahl der Badezimmer: 2
Zufahrtsstraße: Ruhige Straße
Anzahl der Etagen (inkl. Erdgeschoss): 1
Raumhöhe: 280 cm
Warmwasserquelle: Gas-Durchlauferhitzer (zweikreisig)
Heizung: Gas-Zentralheizung
Unterkellerung / Keller: Keller vorhanden
Kellerfläche: 15 m²
Gasanschluss: Ja
Internetanschluss: Ja
Kabelfernsehen: Ja
Kühlschrank: Ja
Backofen: Ja
Geschirrspüler: Ja
Videoüberwachung / Monitoring: Ja
Fenstertyp: Kunststofffenster
Einfriedung: Vollumzäunt
Garage: Ja
Stellplätze: 1
Anzahl der Balkone: 1
In der Nähe:
- Geschäft: in der Nähe
- Kinderkrippe: in der Nähe
- Kindergarten: in der Nähe
- Grundschule: in der Nähe
- Öffentliche Verkehrsmittel: in der Nähe
- Gastronomiebetriebe: in der Nähe
- Krankenhaus: in der Nähe
- Spielplatz: in der Nähe
Badezimmerausstattung:
- Dusche
- Waschbecken
- WC
- Handtuchheizkörper
Hinweis
- Das erste Foto in unserer Galerie wurde leicht bearbeitet, um zu veranschaulichen, wie die Wohnung aussehen könnte – beispielsweise durch eine geänderte Wandfarbe. Die nachfolgenden Bilder zeigen den tatsächlichen Zustand der Immobilie.
- Der in Euro angegebene Preis entspricht dem Preis in Złoty, stellt jedoch aufgrund von Wechselkursschwankungen stets einen Näherungswert dar. In unseren Anzeigen ist stets auch der vom Verkäufer gewünschte Preis in Złoty angegeben.
Hinweise zur polnischen Immobilienpraxis:
- Begrenzte Objektinformationen: In Polen ist es üblich, dass Immobilienanzeigen nicht den genauen Standort der Immobilie preisgeben.
- Grundrisse: Detaillierte Grundrisse werden in Exposés nicht immer bereitgestellt.
Als Immobilienbüro bieten wir deutschsprachigen Kunden eine umfassende Betreuung an. Wir vertreten Sie als Käufer.
Wir arbeiten mit geprüften Partnern zusammen (Immobilienbewertung, Steuerliche und rechtliche Beratung, Vereidigte Übersetzungen, Renovierung sanierungsbedürftiger Objekte).
Bei Kapitalanlagen übernehmen wir auch die Verwaltung der Immobilie.
Persönliche Begleitung – transparent, kompetent und auf Deutsch.
Eigenschaften der Immobilie
- Keller
- Gas
- Zaun
- Garage
Diese Immobilien könnten Sie ebenfalls interessieren
Über uns
Willkommen bei Ihrem Immobilienpartner in Stettin und Westpommern!
Wir sind ein engagiertes Immobilienbüro mit langjähriger Erfahrung auf dem lokalen Markt. In unserem Angebot finden Sie eine große Auswahl an Immobilien in Stettin sowie attraktive Objekte an der polnischen Ostseeküste – ob zum Wohnen, als Kapitalanlage oder zur Feriennutzung.
Wir sprechen Deutsch und begleiten Sie gerne professionell durch den gesamten Kauf- oder Verkaufsprozess. Ob Wohnung, Haus, Grundstück oder Ferienimmobilie – wir finden garantiert die passende Adresse für Sie!
Besuchen Sie uns auf eine Tasse Kaffee in unserem Büro oder nehmen Sie einfach Kontakt mit uns auf. Wir freuen uns auf Sie!
Zusammenarbeit mit uns
Wir sind ein Immobilienbüro, das mit Maklerbüros in der Woiwodschaft Westpommern in Polen zusammenarbeitet. Dabei vertreten wir stets nur eine Seite der Transaktion – nämlich den Kunden aus Deutschland und den DACH-Ländern. In seinem Namen verhandeln wir den Preis, prüfen das Angebot und übernehmen sämtliche Formalitäten.
Auch nach dem Kauf stehen wir unseren Kunden beratend zur Seite und bleiben mit ihnen in Kontakt. Auf Wunsch unterstützen wir auch bei der Renovierung oder umfassenden Sanierung der Immobilie. Darüber hinaus bieten wir die Verwaltung von vermieteten Immobilien an – im Raum Stettin und der näheren Umgebung.
Wir legen großen Wert auf klare Regeln und ein faires Miteinander. Unsere Provision entspricht den in Polen üblichen Sätzen: 3.69% des Kaufpreises bei Wohnungen und Häusern sowie 6,15% bei Grundstücken. Die Provision wird beim Notar im Rahmen der Vertragsunterzeichnung fällig und bezahlt.
Wir arbeiten mit einer renommierten deutschsprachigen Notarkanzlei in Stettin zusammen.
Steuerliche Vorteile
Beim Erwerb von Bestandsimmobilien fällt lediglich eine geringe Grunderwerbsteuer an, die bei Immobilien auf dem Zweitmarkt 2% und bei Immobilien auf dem Erstmarkt 0% beträgt. Darüber hinaus richtet sich die Grundsteuer in Polen nach der Fläche und ist äußerst niedrig.