Exklusive Wohnung in Hoffnungshalben – Ruhige Lage nur 500 m vom Ostseestrand entfernt
185,000 €
Beschreibung
Exklusives Apartment in Trzęsacz – Ruhe und Natur nahe der Ostsee genießen
Wir freuen uns, Ihnen ein modernes Apartment in der charmanten Küstenortschaft Trzęsacz präsentieren zu dürfen. Das Anwesen liegt nur ca. 500 Meter vom wunderschönen Sandstrand entfernt – ideal für alle, die Erholung in ruhiger Umgebung suchen und dabei dem Trubel von bekannten Badeorten wie Międzyzdroje oder Świnoujście entgehen möchten.
Das Apartment ist Teil eines stilvollen Neubauprojekts mit 24 Wohneinheiten und Wohnflächen zwischen 29 m² und 66,5 m². Das Gebäude wurde an der Stelle eines ehemaligen Hofstalls errichtet und verbindet moderne Architektur mit dem historischen Charakter des benachbarten Schlosses. Elemente im Fachwerkstil sowie zahlreiche Holzakzente verleihen dem Objekt einen einzigartigen Charme und fügen sich harmonisch in die Umgebung ein.
Details zum Apartment
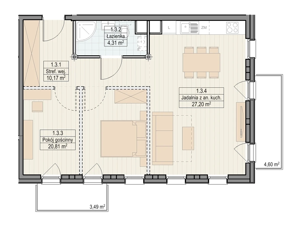
Die angebotene Wohnung befindet sich im Obergeschoss und verfügt über eine Wohnfläche von 62,49 m². Sie besteht aus:
- einem hellen Wohnzimmer mit offener Küchenzeile
- zwei gemütlichen Schlafzimmern
- einem Bad mit moderner Ausstattung
- einem einladenden Flur
Sowohl das Wohnzimmer als auch die beiden Schlafzimmer bieten Zugang zu sonnigen Balkonen mit herrlichem Blick ins Grüne – perfekt, um die frische Meeresluft zu genießen.
Ausstattung und Besonderheiten
- Landschaftlich reizvolle Lage, nur wenige Gehminuten vom Strand entfernt
- Kinderspielplatz und beheizter Außenpool, ausschließlich zur Nutzung durch Eigentümer
- Energieeffizientes Konzept: Photovoltaikanlage auf dem Dach sowie ein Lüftungssystem mit Wärmerückgewinnung (Rekuperation) in jeder Wohneinheit
- Heizung über individuelle Gasthermen
- Geringe Betriebskosten: Betriebskosten betragen nur €1,99/m² (PLN 8,5/m²) und beinhalten die Pflege aller Gemeinschaftsbereiche
- Verkauf im erweiterten Rohbauzustand (developerski) – auf Wunsch kann die Wohnung gegen Aufpreis auch vollständig bezugsfertig („schlüsselfertig“) übergeben werden
Parkmöglichkeiten
Auf dem umzäunten Gelände stehen 24 private Stellplätze zur Verfügung. Ein Parkplatz kann optional zu einem Preis von ca. €8.200 netto (PLN 35.000 netto) erworben werden.
Weitere Informationen
Das Projekt unterliegt der Mehrwertsteuer von 23 %. Der angegebene Preis ist ein Nettopreis.
Die Kombination aus Meeresnähe, modernem Wohnkomfort, ökologischer Bauweise und idyllischer Umgebung macht dieses Angebot zu einer hervorragenden Gelegenheit – sowohl zur Eigennutzung als auch als Wertanlage oder Ferienimmobilie.
Lassen Sie sich verzaubern – wir laden Sie herzlich zu einer unverbindlichen Besichtigung ein!
Details
Immobilienart: Wohnung
Gesamtfläche: 62,49 m²
Gebäudetyp: Apartmenthaus
Baujahr: 2023
Standard: Bauträgerstandard
Gebäudestatus: Neuwertig
Wandmaterial: Ziegel
Küchentyp: Mit Fenster
Anzahl der Badezimmer: 1
Anzahl der Etagen (inkl. Erdgeschoss): 1
Gasanschluss: Ja
Internetanschluss: Ja
Kabel-TV: Ja
Videoüberwachung: Ja
Garage: Ja
Hinweis
- Das erste Foto in unserer Galerie wurde leicht bearbeitet, um zu veranschaulichen, wie die Wohnung aussehen könnte – beispielsweise durch eine geänderte Wandfarbe. Die nachfolgenden Bilder zeigen den tatsächlichen Zustand der Immobilie.
- Der in Euro angegebene Preis entspricht dem Preis in Złoty, stellt jedoch aufgrund von Wechselkursschwankungen stets einen Näherungswert dar. In unseren Anzeigen ist stets auch der vom Verkäufer gewünschte Preis in Złoty angegeben.
Hinweise zur polnischen Immobilienpraxis:
- Begrenzte Objektinformationen: In Polen ist es üblich, dass Immobilienanzeigen nicht den genauen Standort der Immobilie preisgeben.
- Grundrisse: Detaillierte Grundrisse werden in Exposés nicht immer bereitgestellt.
Als Immobilienbüro bieten wir deutschsprachigen Kunden eine umfassende Betreuung an. Wir vertreten Sie als Käufer.
Wir arbeiten mit geprüften Partnern zusammen (Immobilienbewertung, Steuerliche und rechtliche Beratung, Vereidigte Übersetzungen, Renovierung sanierungsbedürftiger Objekte).
Bei Kapitalanlagen übernehmen wir auch die Verwaltung der Immobilie.
Persönliche Begleitung – transparent, kompetent und auf Deutsch.
Eigenschaften der Immobilie
- Gas
- Garage
- Balkon
- an der Ostsee
Diese Immobilien könnten Sie ebenfalls interessieren
Über uns
Willkommen bei Ihrem Immobilienpartner in Stettin und Westpommern!
Wir sind ein engagiertes Immobilienbüro mit langjähriger Erfahrung auf dem lokalen Markt. In unserem Angebot finden Sie eine große Auswahl an Immobilien in Stettin sowie attraktive Objekte an der polnischen Ostseeküste – ob zum Wohnen, als Kapitalanlage oder zur Feriennutzung.
Wir sprechen Deutsch und begleiten Sie gerne professionell durch den gesamten Kauf- oder Verkaufsprozess. Ob Wohnung, Haus, Grundstück oder Ferienimmobilie – wir finden garantiert die passende Adresse für Sie!
Besuchen Sie uns auf eine Tasse Kaffee in unserem Büro oder nehmen Sie einfach Kontakt mit uns auf. Wir freuen uns auf Sie!
Zusammenarbeit mit uns
Wir sind ein Immobilienbüro, das mit Maklerbüros in der Woiwodschaft Westpommern in Polen zusammenarbeitet. Dabei vertreten wir stets nur eine Seite der Transaktion – nämlich den Kunden aus Deutschland und den DACH-Ländern. In seinem Namen verhandeln wir den Preis, prüfen das Angebot und übernehmen sämtliche Formalitäten.
Auch nach dem Kauf stehen wir unseren Kunden beratend zur Seite und bleiben mit ihnen in Kontakt. Auf Wunsch unterstützen wir auch bei der Renovierung oder umfassenden Sanierung der Immobilie. Darüber hinaus bieten wir die Verwaltung von vermieteten Immobilien an – im Raum Stettin und der näheren Umgebung.
Wir legen großen Wert auf klare Regeln und ein faires Miteinander. Unsere Provision entspricht den in Polen üblichen Sätzen: 3.69% des Kaufpreises bei Wohnungen und Häusern sowie 6,15% bei Grundstücken. Die Provision wird beim Notar im Rahmen der Vertragsunterzeichnung fällig und bezahlt.
Wir arbeiten mit einer renommierten deutschsprachigen Notarkanzlei in Stettin zusammen.
Steuerliche Vorteile
Beim Erwerb von Bestandsimmobilien fällt lediglich eine geringe Grunderwerbsteuer an, die bei Immobilien auf dem Zweitmarkt 2% und bei Immobilien auf dem Erstmarkt 0% beträgt. Darüber hinaus richtet sich die Grundsteuer in Polen nach der Fläche und ist äußerst niedrig.