Neubau-Doppelhaushälften in Möhringen – modern wohnen am Teich in grüner Lage
257,000 €
Beschreibung
Einzigartiges Neubauprojekt in malerischer Lage am Teich – Doppelhaushälften in Mierzyn
Willkommen zu einer besonderen Gelegenheit in einer ruhigen, von Natur umgebenen Gegend in der Nähe der ul. Nasienna in Mierzyn. Diese moderne Wohnanlage bietet durchdacht gestaltete Doppelhaushälften, ideal für Familien oder alle, die Komfort und Lebensqualität im Grünen suchen.
Highlights der Immobilie:
- Ruhige, erhöhte Lage mit idyllischem Ausblick
- Moderne Doppelhaushälften mit großzügigen Grundstücken von ca. 350 m²
- Praktische Raumaufteilung auf zwei Ebenen
- Viel Platz und Licht, ideal für individuelles Wohnen
Raumaufteilung:
Erdgeschoss:
- Großzügiger Wohnbereich mit Ausgang zur Terrasse
- Separate, lichtdurchflutete Küche
- Gäste-WC
- Zwei Hauswirtschaftsräume für zusätzlichen Stauraum
Obergeschoss:
- Drei geräumige Schlafzimmer – alle ohne Schrägen
- Große, moderne Familienbadezimmer
- Helle, separate Ankleide
Zusätzlich steht ein großer, hoher Dachboden zur Verfügung – ideal als Lagerfläche oder Ausbaureserve.
Hochwertige Bauweise:
- Solide Silikatbauweise
- Wärmedämmung mit 15 cm Styropor
- Dreifachverglaste Fenster für optimale Isolierung
- Keramikdachziegel für Langlebigkeit und Stil
- Fußbodenheizung im gesamten Haus für gleichmäßige Wärmeverteilung
- Gas-Brennwertkessel für effiziente Heiz- und Warmwasserversorgung
Zusätzliche Vorteile:
- Die großzügigen Grundstücke und Hausausrichtung bieten die Möglichkeit zum Bau eines Carports oder einer Garage
- Fertigstellung des Projekts: Notarverträge bis Ende 2025 vorgesehen
Diese Immobilie überzeugt durch ihre durchdachte Architektur, die hochwertige Ausführung und eine traumhafte Lage – perfekt für alle, die Wohnqualität in naturnaher Umgebung schätzen.
Kaufpreis: Bitte sprechen Sie uns für weitere Informationen und aktuellen Preis an. Beispielhafte Preisumrechnung: €81,735 (PLN 349,000) bei einem Kurs von 1 EUR = 4.27 PLN.
Besichtigungstermine sind ab sofort möglich – wir freuen uns auf Ihre Anfrage!
Details
Immobilienart: Doppelhaushälfte
Verfügbar ab: 31.12.2025
Alter Preis: 999.000 PLN
Gesamtfläche: 120,00 m²
Grundstücksfläche: 350,00 m²
Grundstücksform: Rechteckig
Nutzfläche: 110,00 m²
Eigentumsform des Grundstücks: Eigentum
Haustyp: Doppelhaushälfte
Baujahr: 2023
Ausstattungsstandard: Belagsfertig
Zustand des Gebäudes: Neuwertig
Wandmaterial: Ziegel
Küchentyp: Mit Fenster
Anzahl der Badezimmer: 1
Anzahl der WCs: 2
Anzahl der Etagen (inkl. EG): 1
Stromanschluss: Ja
400V Spannung (Starkstrom): Ja
Gasanschluss: Ja
Klimaanlage: Ja
Dachdeckung: Dachziegel
Garage: Ja
Ankleidezimmer: Ja
Kamin: Ja
Terrasse: Ja
Anzahl der Terrassen: 1
Hinweis
- Das erste Foto in unserer Galerie wurde leicht bearbeitet, um zu veranschaulichen, wie die Wohnung aussehen könnte – beispielsweise durch eine geänderte Wandfarbe. Die nachfolgenden Bilder zeigen den tatsächlichen Zustand der Immobilie.
- Der in Euro angegebene Preis entspricht dem Preis in Złoty, stellt jedoch aufgrund von Wechselkursschwankungen stets einen Näherungswert dar. In unseren Anzeigen ist stets auch der vom Verkäufer gewünschte Preis in Złoty angegeben.
Hinweise zur polnischen Immobilienpraxis:
- Begrenzte Objektinformationen: In Polen ist es üblich, dass Immobilienanzeigen nicht den genauen Standort der Immobilie preisgeben.
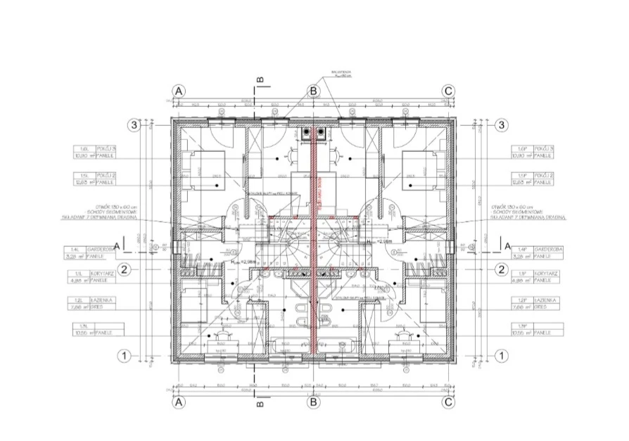
- Grundrisse: Detaillierte Grundrisse werden in Exposés nicht immer bereitgestellt.
Als Immobilienbüro bieten wir deutschsprachigen Kunden eine umfassende Betreuung an. Wir vertreten Sie als Käufer.
Wir arbeiten mit geprüften Partnern zusammen (Immobilienbewertung, Steuerliche und rechtliche Beratung, Vereidigte Übersetzungen, Renovierung sanierungsbedürftiger Objekte).
Bei Kapitalanlagen übernehmen wir auch die Verwaltung der Immobilie.
Persönliche Begleitung – transparent, kompetent und auf Deutsch.
Eigenschaften der Immobilie
- Gas
- Klimaanlage
- Garage
- Garderobe
- Kamin
- Terrasse
Diese Immobilien könnten Sie ebenfalls interessieren
Über uns
Willkommen bei Ihrem Immobilienpartner in Stettin und Westpommern!
Wir sind ein engagiertes Immobilienbüro mit langjähriger Erfahrung auf dem lokalen Markt. In unserem Angebot finden Sie eine große Auswahl an Immobilien in Stettin sowie attraktive Objekte an der polnischen Ostseeküste – ob zum Wohnen, als Kapitalanlage oder zur Feriennutzung.
Wir sprechen Deutsch und begleiten Sie gerne professionell durch den gesamten Kauf- oder Verkaufsprozess. Ob Wohnung, Haus, Grundstück oder Ferienimmobilie – wir finden garantiert die passende Adresse für Sie!
Besuchen Sie uns auf eine Tasse Kaffee in unserem Büro oder nehmen Sie einfach Kontakt mit uns auf. Wir freuen uns auf Sie!
Zusammenarbeit mit uns
Wir sind ein Immobilienbüro, das mit Maklerbüros in der Woiwodschaft Westpommern in Polen zusammenarbeitet. Dabei vertreten wir stets nur eine Seite der Transaktion – nämlich den Kunden aus Deutschland und den DACH-Ländern. In seinem Namen verhandeln wir den Preis, prüfen das Angebot und übernehmen sämtliche Formalitäten.
Auch nach dem Kauf stehen wir unseren Kunden beratend zur Seite und bleiben mit ihnen in Kontakt. Auf Wunsch unterstützen wir auch bei der Renovierung oder umfassenden Sanierung der Immobilie. Darüber hinaus bieten wir die Verwaltung von vermieteten Immobilien an – im Raum Stettin und der näheren Umgebung.
Wir legen großen Wert auf klare Regeln und ein faires Miteinander. Unsere Provision entspricht den in Polen üblichen Sätzen: 3.69% des Kaufpreises bei Wohnungen und Häusern sowie 6,15% bei Grundstücken. Die Provision wird beim Notar im Rahmen der Vertragsunterzeichnung fällig und bezahlt.
Wir arbeiten mit einer renommierten deutschsprachigen Notarkanzlei in Stettin zusammen.
Steuerliche Vorteile
Beim Erwerb von Bestandsimmobilien fällt lediglich eine geringe Grunderwerbsteuer an, die bei Immobilien auf dem Zweitmarkt 2% und bei Immobilien auf dem Erstmarkt 0% beträgt. Darüber hinaus richtet sich die Grundsteuer in Polen nach der Fläche und ist äußerst niedrig.