Stettin: Geräumige 4-Zimmer-Altbauwohnung mit Potenzial in zentraler Lage
145,000 €
Beschreibung
Charmante 4-Zimmer-Wohnung im Herzen der Stadt mit Umgestaltungspotenzial
Zum Verkauf steht eine geräumige 4-Zimmer-Wohnung im ersten Stock eines gepflegten Altbaus in bester Innenstadtlage – direkt am Pl. Zawiszy Czarnego. Diese Lage vereint urbanes Leben mit angenehmer Ruhe, da sich das Gebäude abseits der Hauptverkehrsstraßen befindet. Alle Annehmlichkeiten des täglichen Lebens (öffentliche Verkehrsmittel, Einkaufsmöglichkeiten, Restaurants) sind schnell erreichbar. Die malerischen Uferpromenaden sind nur 10 Gehminuten entfernt.
Die Immobilie bietet enormes Potenzial für individuelle Gestaltung oder Investitionszwecke. Für die Wohnung liegt ein Konzept zur Neugestaltung vor, das die Umwandlung in zwei separate Wohneinheiten vorsieht:
- Zwei-Zimmer-Wohnung mit offenem Wohn-Küchenbereich und eigenem Bad
- Zwei-Zimmer-Wohnung mit offenem Wohn-Küchenbereich und eigenem Bad
Beide Einheiten würden sich lediglich einen gemeinsamen Vorraum (Eingangsbereich) teilen, was ein hohes Maß an Privatsphäre garantiert.
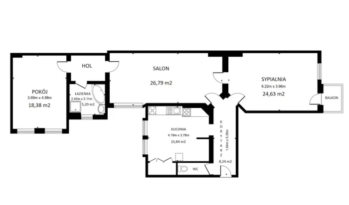
Alternativ kann der derzeitige Grundriss beibehalten werden. Dieser besteht aus:
- 4 Zimmern
- separater Küche
- Badezimmer
- zusätzlichem WC
- geräumigem Flur
Ein Kellerraum gehört ebenfalls zur Wohnung und bietet zusätzlichen Stauraum.
Diese vielseitige Immobilie eignet sich ideal als großzügiges Stadtdomizil, zur Vermietung oder zur Schaffung zweier eigenständiger Apartments. Die ruhige, aber dennoch zentrale Lage macht sie zu einer attraktiven Investition mit langfristigem Wert.
Preis: €xx.xxx (PLN xxx.xxx)
Bitte kontaktieren Sie uns für weitere Informationen oder zur Vereinbarung eines Besichtigungstermins.
Details
Immobilienart: Wohnung
Stadtteil / Wohngebiet: Zentrum
Gesamtfläche: 97,00 m²
Grundstücksart: Eigentum
Gebäudeart: Altbau
Baujahr: 1900
Standard: Leichte Renovierungsarbeiten erforderlich
Zustand des Gebäudes: Sehr gut
Wandmaterial: Ziegel
Küchentyp: Küchenöffnung
Anzahl der Badezimmer: 1
Badezimmerfläche: 5 m²
Anzahl der WCs: 1
WC-Fläche: 1,5 m²
Zufahrtsstraße: Ruhige Straße
Anzahl der Etagen (inkl. EG): 3
Raumhöhe: 320 cm
Warmwasserquelle: Gas, 2-Kreislauf-Therme
Heizung: Gas-Zentralheizung
Keller: Ja
Kellerfläche: 6 m²
Telefonanschluss: Ja
Starkstromanschluss (400V): Ja
Gasanschluss: Ja
Internetanschluss: Ja
Kabelfernsehen: Ja
Gegensprechanlage: Ja
Fensterart: Kunststofffenster
Bodenbelag: Holzdielen
Umzäunung: Komplett eingezäunt
Begehbarer Kleiderschrank: Ja
Ausrichtung / Blickrichtung:
- Südlich: Ja
- Östlich: Ja
- Westlich: Ja
In der Nähe befinden sich:
- Schwimmbad
- Geschäft
- Kinderkrippe
- Kindergarten
- Grundschule
- Bahnhof (PKP)
- Marina
- Öffentliche Verkehrsmittel
- Polizeistation
- Apotheke
- Gastronomiebetrieb
- Fitnessclub
- Krankenhaus
- Bank
Badezimmerausstattung:
- Badewanne
- Fenster
- WC
- Waschbecken
Hinweis
- Das erste Foto in unserer Galerie wurde leicht bearbeitet, um zu veranschaulichen, wie die Wohnung aussehen könnte – beispielsweise durch eine geänderte Wandfarbe. Die nachfolgenden Bilder zeigen den tatsächlichen Zustand der Immobilie.
- Der in Euro angegebene Preis entspricht dem Preis in Złoty, stellt jedoch aufgrund von Wechselkursschwankungen stets einen Näherungswert dar. In unseren Anzeigen ist stets auch der vom Verkäufer gewünschte Preis in Złoty angegeben.
Hinweise zur polnischen Immobilienpraxis:
- Begrenzte Objektinformationen: In Polen ist es üblich, dass Immobilienanzeigen nicht den genauen Standort der Immobilie preisgeben.
- Grundrisse: Detaillierte Grundrisse werden in Exposés nicht immer bereitgestellt.
Als Immobilienbüro bieten wir deutschsprachigen Kunden eine umfassende Betreuung an. Wir vertreten Sie als Käufer.
Wir arbeiten mit geprüften Partnern zusammen (Immobilienbewertung, Steuerliche und rechtliche Beratung, Vereidigte Übersetzungen, Renovierung sanierungsbedürftiger Objekte).
Bei Kapitalanlagen übernehmen wir auch die Verwaltung der Immobilie.
Persönliche Begleitung – transparent, kompetent und auf Deutsch.
Eigenschaften der Immobilie
- Keller
- Gas
- Zaun
- Garderobe
Diese Immobilien könnten Sie ebenfalls interessieren
Über uns
Willkommen bei Ihrem Immobilienpartner in Stettin und Westpommern!
Wir sind ein engagiertes Immobilienbüro mit langjähriger Erfahrung auf dem lokalen Markt. In unserem Angebot finden Sie eine große Auswahl an Immobilien in Stettin sowie attraktive Objekte an der polnischen Ostseeküste – ob zum Wohnen, als Kapitalanlage oder zur Feriennutzung.
Wir sprechen Deutsch und begleiten Sie gerne professionell durch den gesamten Kauf- oder Verkaufsprozess. Ob Wohnung, Haus, Grundstück oder Ferienimmobilie – wir finden garantiert die passende Adresse für Sie!
Besuchen Sie uns auf eine Tasse Kaffee in unserem Büro oder nehmen Sie einfach Kontakt mit uns auf. Wir freuen uns auf Sie!
Zusammenarbeit mit uns
Wir sind ein Immobilienbüro, das mit Maklerbüros in der Woiwodschaft Westpommern in Polen zusammenarbeitet. Dabei vertreten wir stets nur eine Seite der Transaktion – nämlich den Kunden aus Deutschland und den DACH-Ländern. In seinem Namen verhandeln wir den Preis, prüfen das Angebot und übernehmen sämtliche Formalitäten.
Auch nach dem Kauf stehen wir unseren Kunden beratend zur Seite und bleiben mit ihnen in Kontakt. Auf Wunsch unterstützen wir auch bei der Renovierung oder umfassenden Sanierung der Immobilie. Darüber hinaus bieten wir die Verwaltung von vermieteten Immobilien an – im Raum Stettin und der näheren Umgebung.
Wir legen großen Wert auf klare Regeln und ein faires Miteinander. Unsere Provision entspricht den in Polen üblichen Sätzen: 3.69% des Kaufpreises bei Wohnungen und Häusern sowie 6,15% bei Grundstücken. Die Provision wird beim Notar im Rahmen der Vertragsunterzeichnung fällig und bezahlt.
Wir arbeiten mit einer renommierten deutschsprachigen Notarkanzlei in Stettin zusammen.
Steuerliche Vorteile
Beim Erwerb von Bestandsimmobilien fällt lediglich eine geringe Grunderwerbsteuer an, die bei Immobilien auf dem Zweitmarkt 2% und bei Immobilien auf dem Erstmarkt 0% beträgt. Darüber hinaus richtet sich die Grundsteuer in Polen nach der Fläche und ist äußerst niedrig.