Renoviertes Landhaus mit Seeblick und großem Garten in ruhiger Lage von Neuwarp
468,000 €
Beschreibung
Charmantes Landhaus mit Seeblick – Ruhe und Natur pur!
Willkommen in Ihrem neuen Zuhause! Dieses liebevoll renovierte Einfamilienhaus mit einer Wohnfläche von ca. 250 m² befindet sich in idyllischer Lage von Nowe Warpno – nur ca. 35 km von Stettin entfernt, direkt an der deutschen Grenze und in unmittelbarer Nähe zum malerischen Nowowarpieńskie-See.
Highlights auf einen Blick
- Großzügiges Grundstück von 4.900 m² mit zahlreichen Obstbäumen
- Zwei Wohnetagen – Möglichkeit zur Trennung in zwei eigenständige Wohneinheiten
- Komplett sanierter Altbau aus 1922 mit viel Charme: sichtbare Holzbalken kombiniert mit moderner Ausstattung
- Helle, elegante Räume in warmem, weißen Farbschema
- Moderne Küche inkl. hochwertiger BLUM-Systeme und Einbaugeräte
- Zwei Terrassen und direkter Zugang zum Garten vom Wohnzimmer und Schlafzimmer im Erdgeschoss
- Carport sowie Nutz-/Technikräume vorhanden
- Ruhige Lage in einer Seitenstraße mit schneller Anbindung zu Geschäften, Tennisplätzen, Strand und Marina
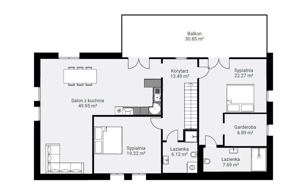
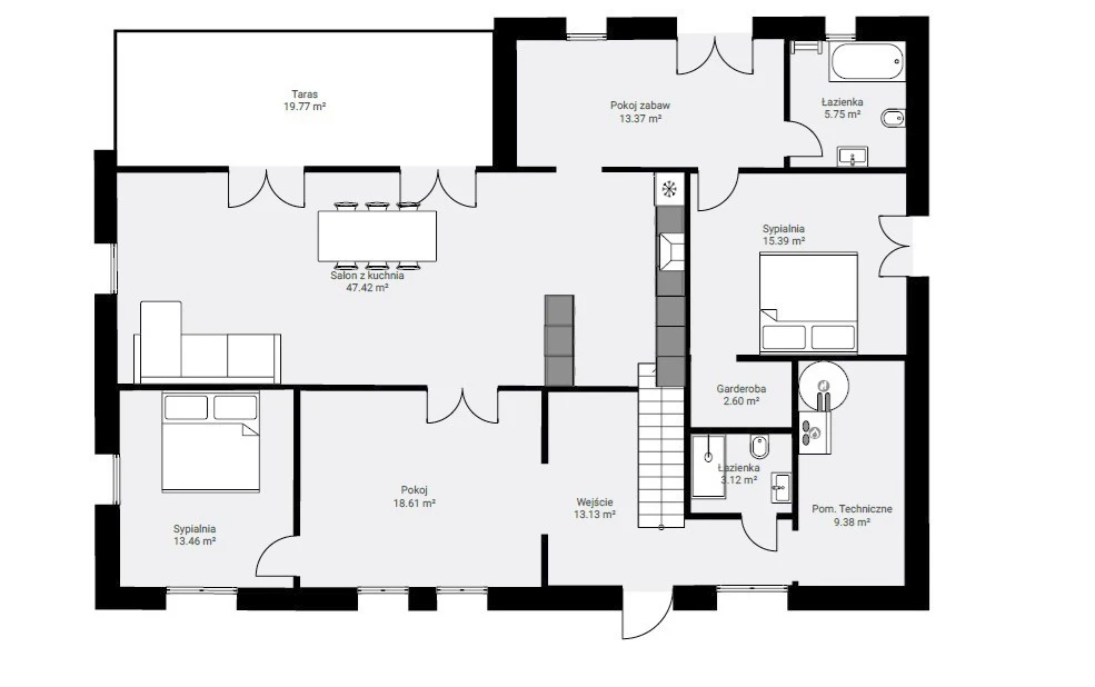
Raumaufteilung
Erdgeschoss:
- Eingangsbereich: 13,13 m²
- Geräumiger Wohnbereich mit offener Küche und Zugang zur Terrasse: 47,42 m²
- Zwei Schlafzimmer (eines mit Ankleideraum): 15,39 m² und 13,46 m²
- Zwei Badezimmer (eines ausbaufähig): 5,75 m² und 3,12 m²
- Zwei weitere Zimmer: 18,61 m² und 13,37 m²
- Hauswirtschaftsraum: 9,38 m²
Obergeschoss:
- Helles Wohnzimmer mit Vorinstallation für Küchenzeile: 49,95 m²
- Großes Schlafzimmer mit Ankleide (6,89 m²) und eigenem Bad zur freien Gestaltung (7,96 m²): Schlafbereich 22,27 m²
- Weiteres Schlafzimmer: 19,32 m²
- Badezimmer mit Dusche: 6,12 m²
- Flur: 13,49 m²
Technische Ausstattung
- Wärmepumpenheizung, im Erdgeschoss zusätzlich Fußbodenheizung
- Neue dreifachverglaste Kunststofffenster
- Neue Fassade
- Dachdeckung mit klassischen Ziegeln
- Anschluss an städtisches Wasser, Abwasser und Strom (inkl. Starkstromanschluss)
- Gasanschluss vorhanden
- Internet, Kabelfernsehen und Telefonleitung vorhanden
- Komplett ausgestattete Küche mit Kühlschrank, Backofen, Geschirrspüler
Ein Ort zum Wohlfühlen
Dieses traumhafte Anwesen bietet eine perfekte Kombination aus modernem Wohnkomfort, Geschichte und Naturverbundenheit. Ob für eine Familie, mehrere Generationen oder als Ferienhaus mit Investitionspotenzial – hier sind viele Nutzungsmöglichkeiten denkbar.
Der Garten lädt mit seinem alten Baumbestand zum Entspannen ein, während Sie den Sonnenuntergang mit Blick auf den See von Ihrer Terrasse aus genießen.
Die Umgebung bietet zahlreiche Freizeitmöglichkeiten wie Wassersport, Wandern, Radfahren und Segeln. Trotz naturnaher Lage sind alle wichtigen Einrichtungen des täglichen Bedarfs schnell erreichbar.
Erleben Sie die Ruhe und den besonderen Charme dieses einmaligen Hauses – Ihr neues Zuhause wartet auf Sie!
Details
- Immobilienart: Einfamilienhaus
- Lage des Grundstücks: Eben
- Gesamtfläche: 250,00 m²
- Grundstücksfläche: 4.900,00 m²
- Grundstücksform: Rechteckig
- Nutzfläche: 250,00 m²
- Eigentumsform des Grundstücks: Eigentum
- Haustyp: Freistehend
- Baujahr: 1922
- Standard: Sehr gut
- Gebäudebeschaffenheit: Sehr gut
- Bauweise: Ziegel
- Küchentyp: Küchenzeile
- Anzahl der Badezimmer: 4
- Zufahrtsstraße: Ruhige Straße
- Anzahl der Etagen (inkl. Erdgeschoss): 1
- Heizung: Wärmepumpe
- Telefonanschluss: Ja
- Stromanschluss: Ja
- 400V Stromversorgung (Drehstrom): Ja
- Gasanschluss: Ja
- Abwasserart: Städtisch
- Wasserversorgung: Städtisch
- Internet: Ja
- Kabelfernsehen: Ja
- Kühlschrank: Ja
- Backofen: Ja
- Geschirrspüler: Ja
- Fensterart: Kunststoff
- Dacheindeckung: Dachziegel
- Dachboden: Ausgebaut
- Fußbodenbelag: Holzdielen
- Zaunart: Gemischt
- Garage: Ja
- Garten: Ja
- Begehbarer Kleiderschrank: Ja
- Hauswirtschaftsraum: Ja
- Terrasse: Ja
- Anzahl der Terrassen: 2
- Terrassenfläche: 20 m²
- Nächstgelegener See: In der Nähe
- Öffentliche Verkehrsmittel: In der Nähe
- Badezimmerausstattung: Dusche, Badewanne, WC, Waschbecken
Hinweis
- Das erste Foto in unserer Galerie wurde leicht bearbeitet, um zu veranschaulichen, wie die Wohnung aussehen könnte – beispielsweise durch eine geänderte Wandfarbe. Die nachfolgenden Bilder zeigen den tatsächlichen Zustand der Immobilie.
- Der in Euro angegebene Preis entspricht dem Preis in Złoty, stellt jedoch aufgrund von Wechselkursschwankungen stets einen Näherungswert dar. In unseren Anzeigen ist stets auch der vom Verkäufer gewünschte Preis in Złoty angegeben.
Hinweise zur polnischen Immobilienpraxis:
- Begrenzte Objektinformationen: In Polen ist es üblich, dass Immobilienanzeigen nicht den genauen Standort der Immobilie preisgeben.
- Grundrisse: Detaillierte Grundrisse werden in Exposés nicht immer bereitgestellt.
Als Immobilienbüro bieten wir deutschsprachigen Kunden eine umfassende Betreuung an. Wir vertreten Sie als Käufer.
Wir arbeiten mit geprüften Partnern zusammen (Immobilienbewertung, Steuerliche und rechtliche Beratung, Vereidigte Übersetzungen, Renovierung sanierungsbedürftiger Objekte).
Bei Kapitalanlagen übernehmen wir auch die Verwaltung der Immobilie.
Persönliche Begleitung – transparent, kompetent und auf Deutsch.
Eigenschaften der Immobilie
- über dem Wasser
- Gas
- Garage
- Garten
- Garderobe
- Terrasse
Diese Immobilien könnten Sie ebenfalls interessieren
Über uns
Willkommen bei Ihrem Immobilienpartner in Stettin und Westpommern!
Wir sind ein engagiertes Immobilienbüro mit langjähriger Erfahrung auf dem lokalen Markt. In unserem Angebot finden Sie eine große Auswahl an Immobilien in Stettin sowie attraktive Objekte an der polnischen Ostseeküste – ob zum Wohnen, als Kapitalanlage oder zur Feriennutzung.
Wir sprechen Deutsch und begleiten Sie gerne professionell durch den gesamten Kauf- oder Verkaufsprozess. Ob Wohnung, Haus, Grundstück oder Ferienimmobilie – wir finden garantiert die passende Adresse für Sie!
Besuchen Sie uns auf eine Tasse Kaffee in unserem Büro oder nehmen Sie einfach Kontakt mit uns auf. Wir freuen uns auf Sie!
Zusammenarbeit mit uns
Wir sind ein Immobilienbüro, das mit Maklerbüros in der Woiwodschaft Westpommern in Polen zusammenarbeitet. Dabei vertreten wir stets nur eine Seite der Transaktion – nämlich den Kunden aus Deutschland und den DACH-Ländern. In seinem Namen verhandeln wir den Preis, prüfen das Angebot und übernehmen sämtliche Formalitäten.
Auch nach dem Kauf stehen wir unseren Kunden beratend zur Seite und bleiben mit ihnen in Kontakt. Auf Wunsch unterstützen wir auch bei der Renovierung oder umfassenden Sanierung der Immobilie. Darüber hinaus bieten wir die Verwaltung von vermieteten Immobilien an – im Raum Stettin und der näheren Umgebung.
Wir legen großen Wert auf klare Regeln und ein faires Miteinander. Unsere Provision entspricht den in Polen üblichen Sätzen: 3.69% des Kaufpreises bei Wohnungen und Häusern sowie 6,15% bei Grundstücken. Die Provision wird beim Notar im Rahmen der Vertragsunterzeichnung fällig und bezahlt.
Wir arbeiten mit einer renommierten deutschsprachigen Notarkanzlei in Stettin zusammen.
Steuerliche Vorteile
Beim Erwerb von Bestandsimmobilien fällt lediglich eine geringe Grunderwerbsteuer an, die bei Immobilien auf dem Zweitmarkt 2% und bei Immobilien auf dem Erstmarkt 0% beträgt. Darüber hinaus richtet sich die Grundsteuer in Polen nach der Fläche und ist äußerst niedrig.