Großzügige 6-Zimmer-Maisonette im Zentrum von Stettin mit 2 Küchen & 3 Bädern
283,000 € 347,000 €
Beschreibung
Attraktive, großzügige Maisonette-Wohnung mit 6 Zimmern im Herzen der Stadt
Wir präsentieren Ihnen eine großzügige Maisonette-Wohnung mit einer Gesamtfläche von ca. 150 m², gelegen im 3. Obergeschoss eines charmanten Altbaus im Zentrum der Stadt – in der Nähe der Małkowskiego-Straße.
Raumaufteilung:
Die Wohnung erstreckt sich über zwei Ebenen und umfasst:
- 6 separate Zimmer,
- 3 Badezimmer,
- 2 vollständig ausgestattete Küchen.
Erstes Obergeschoss:
- 4 helle Zimmer,
- 2 separate Küchen,
- 2 Badezimmer.
Zweites Obergeschoss:
Über eine stilvolle Holztreppe gelangen Sie zur oberen Etage mit:
- 2 weiteren Zimmern,
- 1 Badezimmer mit WC.
Nutzungsmöglichkeiten:
Diese Immobilie eignet sich hervorragend sowohl als komfortables Zuhause für eine große Familie, als auch als interessante Kapitalanlage. Dank der durchdachten Raumaufteilung, drei Badezimmern und zwei Küchen besteht die Möglichkeit zur Einrichtung mehrerer separater Wohneinheiten – zum Beispiel einzelner Studios oder Einzimmerwohnungen zur Vermietung.
Ausstattung:
- PVC-Fenster,
- Böden mit Laminat ausgelegt,
- Wände frisch gestrichen,
- Gute Lichtverhältnisse in allen Räumen.
Heizung und Warmwasser werden über eine moderne Gastherme bereitgestellt.
Weitere Vorteile:
- 2 Kellerabteile gehören zur Wohnung,
- 2 private Parkplätze im Innenhof des Gebäudes – ein wertvoller Vorteil im Stadtzentrum.
Diese Immobilie bietet enormes Potenzial – egal ob für Eigennutzer oder als Anlage. Vereinbaren Sie gerne einen Besichtigungstermin und überzeugen Sie sich vor Ort von den Möglichkeiten dieses einzigartigen Objekts im Herzen der Stadt.
Alle Angaben nach bestem Wissen – Änderungen vorbehalten.
Details
Immobilienart: WOHNUNG
Verfügbar ab: 09.07.2024
Alter Preis: 980.000 PLN
Stadtteil: Śródmieście-Centrum
Gesamtfläche: 150,62 m²
Grundstückseigentum: EIGENTUM
Gebäudetyp: ALTBAU
Baujahr: 1935
Zustand: ZU AUFFRISCHEN
Wandmaterial: ZIEGEL
Küchentyp: GETRENNT
Anzahl der Badezimmer: 3
Anzahl der Etagen (inkl. Erdgeschoss): 4
Raumhöhe: 3,05 m
Warmwasserquelle: GAS-DURCHLAUFERHITZER, ZWEIKREISIG
Heizung: GAS-ZENTRALHEIZUNG
Gasanschluss: JA
Kühlschrank: JA
Backofen: JA
Gegensprechanlage: JA
Fenstertyp: KUNSTSTOFFFENSTER
Bodenbelag: LAMINATPARKETT
Garage: JA
Lage und Umgebung:
- Nächster Park: in der Nähe
- Nächste Grundschule: in der Nähe
- Öffentliche Verkehrsmittel: in der Nähe
- Nächste Apotheke: in der Nähe
- Nächstes Restaurant: in der Nähe
- Nächstes Fitnessstudio: in der Nähe
- Nächste Bankfiliale: in der Nähe
- Nächster Spielplatz: in der Nähe
Diese großzügige Wohnung befindet sich im beliebten Stadtzentrum von Śródmieście-Centrum, in einem stilvollen Altbau aus dem Jahr 1935. Das Gebäude überzeugt mit klassischem Charakter und solider Ziegelbauweise. Die Wohnung bietet mit 150,62 m² viel Raum zur freien Gestaltung und eignet sich ideal für Familien, Wohngemeinschaften oder zur Kombination von Wohnen und Arbeiten.
Die Raumhöhe von 3,05 m verleiht den Räumen ein großzügiges, offenes Raumgefühl. Drei Badezimmer sorgen für Komfort und Flexibilität im Alltag. Die separate Küche ist funktional und mit wichtigen Geräten wie Kühlschrank und Backofen ausgestattet.
Dank des Gas-Zweikreissystems ist sowohl die Warmwasserbereitung als auch die Heizung effizient geregelt. Kunststofffenster und Laminatböden runden das praktische Wohnkonzept ab. Ein eigener Garagenstellplatz bietet zusätzlichen Komfort – eine Seltenheit in dieser zentralen Lage.
Die Wohnung befindet sich in einem Zustand, der nach Ihren Wünschen aufgefrischt werden kann – eine ideale Gelegenheit, um eigenen Wohnträumen freien Lauf zu lassen.
Die hervorragende Infrastruktur spricht für sich: Parks, Schulen, Apotheken, Gastronomie, Fitnessstudios, Banken und ÖPNV befinden sich in unmittelbarer Nähe.
Nutzen Sie diese seltene Gelegenheit, eine Wohnung mit viel Potenzial in zentraler Lage zu erwerben!
Hinweis
- Das erste Foto in unserer Galerie wurde leicht bearbeitet, um zu veranschaulichen, wie die Wohnung aussehen könnte – beispielsweise durch eine geänderte Wandfarbe. Die nachfolgenden Bilder zeigen den tatsächlichen Zustand der Immobilie.
- Der in Euro angegebene Preis entspricht dem Preis in Złoty, stellt jedoch aufgrund von Wechselkursschwankungen stets einen Näherungswert dar. In unseren Anzeigen ist stets auch der vom Verkäufer gewünschte Preis in Złoty angegeben.
Hinweise zur polnischen Immobilienpraxis:
- Begrenzte Objektinformationen: In Polen ist es üblich, dass Immobilienanzeigen nicht den genauen Standort der Immobilie preisgeben.
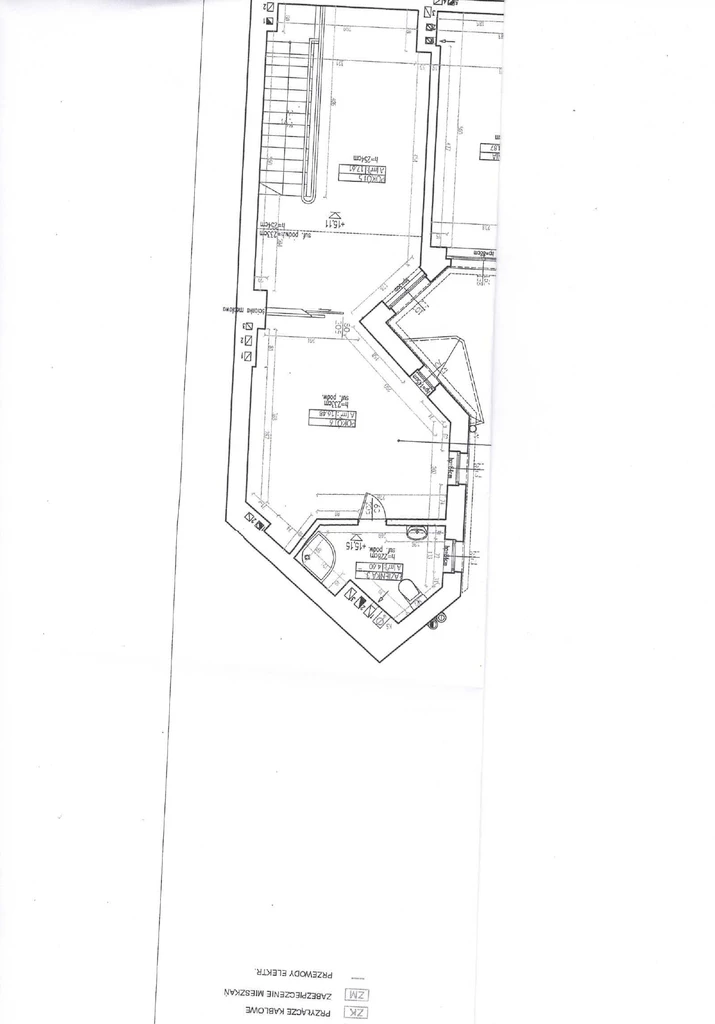
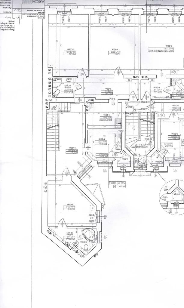
- Grundrisse: Detaillierte Grundrisse werden in Exposés nicht immer bereitgestellt.
Als Immobilienbüro bieten wir deutschsprachigen Kunden eine umfassende Betreuung an. Wir vertreten Sie als Käufer.
Wir arbeiten mit geprüften Partnern zusammen (Immobilienbewertung, Steuerliche und rechtliche Beratung, Vereidigte Übersetzungen, Renovierung sanierungsbedürftiger Objekte).
Bei Kapitalanlagen übernehmen wir auch die Verwaltung der Immobilie.
Persönliche Begleitung – transparent, kompetent und auf Deutsch.
Eigenschaften der Immobilie
- Gas
- Garage
- Keller
Diese Immobilien könnten Sie ebenfalls interessieren
Über uns
Willkommen bei Ihrem Immobilienpartner in Stettin und Westpommern!
Wir sind ein engagiertes Immobilienbüro mit langjähriger Erfahrung auf dem lokalen Markt. In unserem Angebot finden Sie eine große Auswahl an Immobilien in Stettin sowie attraktive Objekte an der polnischen Ostseeküste – ob zum Wohnen, als Kapitalanlage oder zur Feriennutzung.
Wir sprechen Deutsch und begleiten Sie gerne professionell durch den gesamten Kauf- oder Verkaufsprozess. Ob Wohnung, Haus, Grundstück oder Ferienimmobilie – wir finden garantiert die passende Adresse für Sie!
Besuchen Sie uns auf eine Tasse Kaffee in unserem Büro oder nehmen Sie einfach Kontakt mit uns auf. Wir freuen uns auf Sie!
Zusammenarbeit mit uns
Wir sind ein Immobilienbüro, das mit Maklerbüros in der Woiwodschaft Westpommern in Polen zusammenarbeitet. Dabei vertreten wir stets nur eine Seite der Transaktion – nämlich den Kunden aus Deutschland und den DACH-Ländern. In seinem Namen verhandeln wir den Preis, prüfen das Angebot und übernehmen sämtliche Formalitäten.
Auch nach dem Kauf stehen wir unseren Kunden beratend zur Seite und bleiben mit ihnen in Kontakt. Auf Wunsch unterstützen wir auch bei der Renovierung oder umfassenden Sanierung der Immobilie. Darüber hinaus bieten wir die Verwaltung von vermieteten Immobilien an – im Raum Stettin und der näheren Umgebung.
Wir legen großen Wert auf klare Regeln und ein faires Miteinander. Unsere Provision entspricht den in Polen üblichen Sätzen: 3.69% des Kaufpreises bei Wohnungen und Häusern sowie 6,15% bei Grundstücken. Die Provision wird beim Notar im Rahmen der Vertragsunterzeichnung fällig und bezahlt.
Wir arbeiten mit einer renommierten deutschsprachigen Notarkanzlei in Stettin zusammen.
Steuerliche Vorteile
Beim Erwerb von Bestandsimmobilien fällt lediglich eine geringe Grunderwerbsteuer an, die bei Immobilien auf dem Zweitmarkt 2% und bei Immobilien auf dem Erstmarkt 0% beträgt. Darüber hinaus richtet sich die Grundsteuer in Polen nach der Fläche und ist äußerst niedrig.