Modernes Einfamilienhaus im Rohbau auf großem Naturgrundstück in Daber entdecken
472,000 €
Beschreibung
Modernes Einfamilienhaus in naturnaher Lage – Individuelle Gestaltung möglich!
Willkommen in Dobra! Hier erwartet Sie ein außergewöhnliches Einfamilienhaus, das mit hoher Bauqualität und beeindruckenden Ausstattungsmerkmalen überzeugt. Ideal für alle, die ihr zukünftiges Zuhause nach eigenen Vorstellungen vollenden möchten.
Objektdaten im Überblick
- Wohnfläche: ca. 238 m²
- Grundstück: ca. 1.626 m²
- Baujahr: 2022
- Zustand: Rohbau (geschlossen)
- Bauweise: Silikatsteine
- Fenster: Aluminiumfenster der Marke Reynaers Aluminium MasterLine 8Hl+
- Garage: Doppelgarage ca. 33,3 m²
- Energieversorgung: eigener Stromanschluss, Brunnenwasser, kein Gasanschluss
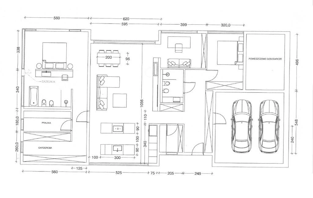
Raumaufteilung – Großzügig und durchdacht
Das Haus erstreckt sich über ca. 238 m² und bietet Ihnen viel Platz für ein komfortables Wohnen:
- Eingangsbereich (Windfang): 5,98 m²
- Speisekammer: 4,92 m²
- Flur: 14,47 m²
- Helles Wohnzimmer: 41,96 m²
- Geräumige Küche: 20,89 m²
- Zimmer/Büro: 12,37 m²
- Schlafzimmer: 18,90 m²
- Badezimmer I: 13,08 m²
- Hauswirtschaftsraum: 6,82 m²
- Ankleidezimmer: 13,13 m²
- Weiterer Flur: 10,00 m²
- Badezimmer II: 6,05 m²
- Weiteres Zimmer: 15,87 m²
- Abstellraum: 8,74 m²
- Technikraum: 7,28 m²
- Garage für zwei PKW: 33,30 m²
Moderne Bauweise & Energieeffizienz
Das Dach wurde mit skandinavischem Holz konstruiert und mit einem hochwertigen, integrierten Solardachsystem aus dem Hause SunRoof inklusive Doerken-Membran ausgestattet. Ein moderner Energiespeicher sowie zwei Inverter mit entsprechenden Schutzsystemen sind bereits installiert.
Die 2,80 m hohen Aluminiumfenster und -türen sorgen für lichtdurchflutete Räume und vermitteln ein Gefühl von Großzügigkeit. Ein komfortables Detail: Das Haus ist mit elektrischen Außenjalousien ausgestattet, die bereits integriert sind.
Außenbereich
Das rechteckige Grundstück bietet viel Freiraum für Gartenliebhaber und ist bereits mit einem Zaun umzäunt. Die Lage verspricht Ruhe und Nähe zur Natur – ideal für Familien oder alle, die dem Stadttrubel entkommen möchten.
Fazit
Ein energieeffizienter Rohbau der Extraklasse mit hochwertiger Grundausstattung wartet auf seine Vollendung. Verwirklichen Sie hier Ihr individuelles Wohnkonzept auf einem großzügigen Grundstück – ruhig gelegen und zukunftssicher gebaut.
Seriöse Bauweise, moderne Technologien und ein interessanter Grundriss machen dieses Objekt zu einer idealen Investition in Ihr zukünftiges Zuhause.
Vereinbaren Sie noch heute einen Besichtigungstermin – wir freuen uns auf Ihren Besuch!
Details
Immobilienart: Haus
Gesamtfläche: 237,76 m²
Grundstücksfläche: 1.626,00 m²
Wohnfläche: 237,76 m²
Haustyp: Freistehend
Baujahr: 2022
Standard: Geschlossener Rohbau
Gebäudestatus: Geschlossener Rohbau
Wandmaterial: Kalksandstein
Anzahl der Badezimmer: 2
Stromanschluss: Ja
Fenstertyp: Aluminium
Garage: Ja
Anzahl der Garagenstellplätze: 2
Hinweis
- Das erste Foto in unserer Galerie wurde leicht bearbeitet, um zu veranschaulichen, wie die Wohnung aussehen könnte – beispielsweise durch eine geänderte Wandfarbe. Die nachfolgenden Bilder zeigen den tatsächlichen Zustand der Immobilie.
- Der in Euro angegebene Preis entspricht dem Preis in Złoty, stellt jedoch aufgrund von Wechselkursschwankungen stets einen Näherungswert dar. In unseren Anzeigen ist stets auch der vom Verkäufer gewünschte Preis in Złoty angegeben.
Hinweise zur polnischen Immobilienpraxis:
- Begrenzte Objektinformationen: In Polen ist es üblich, dass Immobilienanzeigen nicht den genauen Standort der Immobilie preisgeben.
- Grundrisse: Detaillierte Grundrisse werden in Exposés nicht immer bereitgestellt.
Als Immobilienbüro bieten wir deutschsprachigen Kunden eine umfassende Betreuung an. Wir vertreten Sie als Käufer.
Wir arbeiten mit geprüften Partnern zusammen (Immobilienbewertung, Steuerliche und rechtliche Beratung, Vereidigte Übersetzungen, Renovierung sanierungsbedürftiger Objekte).
Bei Kapitalanlagen übernehmen wir auch die Verwaltung der Immobilie.
Persönliche Begleitung – transparent, kompetent und auf Deutsch.
Eigenschaften der Immobilie
- Garage
- Garten
- nahe der Grenze
Diese Immobilien könnten Sie ebenfalls interessieren
Über uns
Willkommen bei Ihrem Immobilienpartner in Stettin und Westpommern!
Wir sind ein engagiertes Immobilienbüro mit langjähriger Erfahrung auf dem lokalen Markt. In unserem Angebot finden Sie eine große Auswahl an Immobilien in Stettin sowie attraktive Objekte an der polnischen Ostseeküste – ob zum Wohnen, als Kapitalanlage oder zur Feriennutzung.
Wir sprechen Deutsch und begleiten Sie gerne professionell durch den gesamten Kauf- oder Verkaufsprozess. Ob Wohnung, Haus, Grundstück oder Ferienimmobilie – wir finden garantiert die passende Adresse für Sie!
Besuchen Sie uns auf eine Tasse Kaffee in unserem Büro oder nehmen Sie einfach Kontakt mit uns auf. Wir freuen uns auf Sie!
Zusammenarbeit mit uns
Wir sind ein Immobilienbüro, das mit Maklerbüros in der Woiwodschaft Westpommern in Polen zusammenarbeitet. Dabei vertreten wir stets nur eine Seite der Transaktion – nämlich den Kunden aus Deutschland und den DACH-Ländern. In seinem Namen verhandeln wir den Preis, prüfen das Angebot und übernehmen sämtliche Formalitäten.
Auch nach dem Kauf stehen wir unseren Kunden beratend zur Seite und bleiben mit ihnen in Kontakt. Auf Wunsch unterstützen wir auch bei der Renovierung oder umfassenden Sanierung der Immobilie. Darüber hinaus bieten wir die Verwaltung von vermieteten Immobilien an – im Raum Stettin und der näheren Umgebung.
Wir legen großen Wert auf klare Regeln und ein faires Miteinander. Unsere Provision entspricht den in Polen üblichen Sätzen: 3.69% des Kaufpreises bei Wohnungen und Häusern sowie 6,15% bei Grundstücken. Die Provision wird beim Notar im Rahmen der Vertragsunterzeichnung fällig und bezahlt.
Wir arbeiten mit einer renommierten deutschsprachigen Notarkanzlei in Stettin zusammen.
Steuerliche Vorteile
Beim Erwerb von Bestandsimmobilien fällt lediglich eine geringe Grunderwerbsteuer an, die bei Immobilien auf dem Zweitmarkt 2% und bei Immobilien auf dem Erstmarkt 0% beträgt. Darüber hinaus richtet sich die Grundsteuer in Polen nach der Fläche und ist äußerst niedrig.