Modernes Maisonette mit Garten und Dachterrasse in ruhiger Lage in Stettin-Krzekowo
183,000 €
Beschreibung
Modernes Maisonette-Apartment mit Garten und Terrasse in ruhiger Lage von Szczecin-Krzekowo
Willkommen in Ihrem neuen Zuhause! Dieses charmante, dreigeschossige Apartment befindet sich in einem ruhigen, familienfreundlichen Wohnviertel im gefragten Stadtteil Krzekowo in Stettin. Die Siedlung bietet eine ideale Balance zwischen urbanem Komfort und naturnahem Wohnen ‒ mit ausgezeichnetem Zugang zur Innenstadt sowie zu Freizeit- und Erholungseinrichtungen.
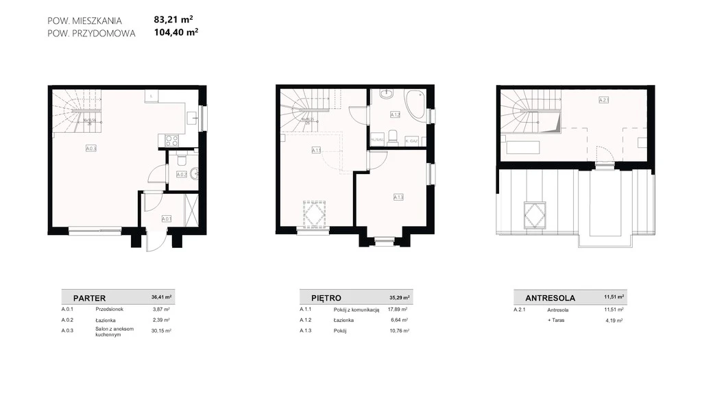
Wohnfläche und Aufteilung
Das Apartment verfügt über eine Gesamtfläche von 83,21 m², verteilt auf drei Ebenen:
- Erdgeschoss: großzügiger Wohnbereich mit offener Küche, Eingangsbereich und Gäste-WC
- 1. Obergeschoss: zwei helle Schlafzimmer sowie ein modernes Badezimmer
- 2. Obergeschoss: offene Galerie mit Zugang zu einer großen Dachterrasse
Privater Garten und Stellplatz
Hervorzuheben ist der private, direkt vom Wohnzimmer aus begehbare Garten mit 104,4 m² – perfekt zum Entspannen, Gärtnern oder Spielen für Kinder.
Ein PKW-Außenstellplatz, günstig in Nähe des Wohnungseingangs gelegen, gehört ebenfalls zur Immobilie.
Es besteht die Möglichkeit, einen weiteren Außenstellplatz zum Preis von €3.500 (PLN 15.000) zu erwerben.
Bautechnik und Ausstattung
Das Gebäude wurde aus Porotherm- und Suporex-Mauerwerk errichtet und mit einer 18 cm dicken Styropor-Dämmung isoliert – dadurch profitieren Sie von einem ausgezeichneten Wärme- und Schallschutz.
- Heizung und Warmwasser erfolgen über eine energieeffiziente Gastherme
- Lüftungssystem mit Wärmerückgewinnung (Rekuperation) sorgt für ein angenehmes Raumklima zu jeder Jahreszeit
Vielfalt an Wohnungstypen
In diesem Projekt stehen 4 verschiedene Wohnungstypen zur Auswahl – mit Wohnflächen zwischen 65 m² und 84 m² sowie variierenden Grundrissen und Gartenflächen.
Die gesamte Wohnsiedlung umfasst 16 stilvoll gestaltete Gebäude in moderner Architektursprache. Jedes Gebäude beherbergt nur zwei Wohneinheiten, was ein hohes Maß an Privatsphäre verspricht.
Baufortschritt
- Baubeginn: 1. Quartal 2024
- Geplante Fertigstellung der ersten Einheiten: 2. Quartal 2025
Diese Wohnung ist eine ideale Lösung für alle, die die Vorzüge eines Hauses genießen möchten, ohne auf die Vorteile des städtischen Lebens verzichten zu müssen. Perfekt geeignet für Familien, Paare und alle, die Komfort schätzen und modernes Wohnen in naturnaher Umgebung suchen.
Details
Immobilienart: Wohnung
Verfügbar ab: 30.06.2025
Stadtteil: Krzekowo
Gesamtfläche: 83,21 m²
Grundstückseigentum: Eigentum
Gebäudetyp: Haus
Baujahr: 2023
Standard: Entwicklertandard
Wandmaterial: Keramikziegel
Küchentyp: Kochnische
Anzahl der Badezimmer: 1
Anzahl der WCs: 1
Erdgeschosswohnung: Ja
Anzahl der Etagen (inkl. EG): 2
Warmwasseraufbereitung: Gastherme (2-Kreislaufsystem)
Heizung: Gas-Zentralheizung
Gasanschluss: Ja
Gegensprechanlage: Ja
Fenster: Kunststofffenster
Einfriedung: Komplett umzäunt
Garage: Ja
Lage und Umgebung
- Nächstgelegener Lebensmittelladen: in der Nähe
- Nächster Kindergarten: in der Nähe
- Nächste Grundschule: in der Nähe
- Öffentliche Verkehrsmittel: in der Nähe
- Nächster Spielplatz: in der Nähe
Hinweis
- Das erste Foto in unserer Galerie wurde leicht bearbeitet, um zu veranschaulichen, wie die Wohnung aussehen könnte – beispielsweise durch eine geänderte Wandfarbe. Die nachfolgenden Bilder zeigen den tatsächlichen Zustand der Immobilie.
- Der in Euro angegebene Preis entspricht dem Preis in Złoty, stellt jedoch aufgrund von Wechselkursschwankungen stets einen Näherungswert dar. In unseren Anzeigen ist stets auch der vom Verkäufer gewünschte Preis in Złoty angegeben.
Hinweise zur polnischen Immobilienpraxis:
- Begrenzte Objektinformationen: In Polen ist es üblich, dass Immobilienanzeigen nicht den genauen Standort der Immobilie preisgeben.
- Grundrisse: Detaillierte Grundrisse werden in Exposés nicht immer bereitgestellt.
Als Immobilienbüro bieten wir deutschsprachigen Kunden eine umfassende Betreuung an. Wir vertreten Sie als Käufer.
Wir arbeiten mit geprüften Partnern zusammen (Immobilienbewertung, Steuerliche und rechtliche Beratung, Vereidigte Übersetzungen, Renovierung sanierungsbedürftiger Objekte).
Bei Kapitalanlagen übernehmen wir auch die Verwaltung der Immobilie.
Persönliche Begleitung – transparent, kompetent und auf Deutsch.
Eigenschaften der Immobilie
- Erdgeschoss
- Gas
- Zaun
- Garage
- Garten
Diese Immobilien könnten Sie ebenfalls interessieren
Über uns
Willkommen bei Ihrem Immobilienpartner in Stettin und Westpommern!
Wir sind ein engagiertes Immobilienbüro mit langjähriger Erfahrung auf dem lokalen Markt. In unserem Angebot finden Sie eine große Auswahl an Immobilien in Stettin sowie attraktive Objekte an der polnischen Ostseeküste – ob zum Wohnen, als Kapitalanlage oder zur Feriennutzung.
Wir sprechen Deutsch und begleiten Sie gerne professionell durch den gesamten Kauf- oder Verkaufsprozess. Ob Wohnung, Haus, Grundstück oder Ferienimmobilie – wir finden garantiert die passende Adresse für Sie!
Besuchen Sie uns auf eine Tasse Kaffee in unserem Büro oder nehmen Sie einfach Kontakt mit uns auf. Wir freuen uns auf Sie!
Zusammenarbeit mit uns
Wir sind ein Immobilienbüro, das mit Maklerbüros in der Woiwodschaft Westpommern in Polen zusammenarbeitet. Dabei vertreten wir stets nur eine Seite der Transaktion – nämlich den Kunden aus Deutschland und den DACH-Ländern. In seinem Namen verhandeln wir den Preis, prüfen das Angebot und übernehmen sämtliche Formalitäten.
Auch nach dem Kauf stehen wir unseren Kunden beratend zur Seite und bleiben mit ihnen in Kontakt. Auf Wunsch unterstützen wir auch bei der Renovierung oder umfassenden Sanierung der Immobilie. Darüber hinaus bieten wir die Verwaltung von vermieteten Immobilien an – im Raum Stettin und der näheren Umgebung.
Wir legen großen Wert auf klare Regeln und ein faires Miteinander. Unsere Provision entspricht den in Polen üblichen Sätzen: 3.69% des Kaufpreises bei Wohnungen und Häusern sowie 6,15% bei Grundstücken. Die Provision wird beim Notar im Rahmen der Vertragsunterzeichnung fällig und bezahlt.
Wir arbeiten mit einer renommierten deutschsprachigen Notarkanzlei in Stettin zusammen.
Steuerliche Vorteile
Beim Erwerb von Bestandsimmobilien fällt lediglich eine geringe Grunderwerbsteuer an, die bei Immobilien auf dem Zweitmarkt 2% und bei Immobilien auf dem Erstmarkt 0% beträgt. Darüber hinaus richtet sich die Grundsteuer in Polen nach der Fläche und ist äußerst niedrig.