Neubauwohnung in Mierzyn – Erstbezug mit Aufzug in ruhiger, grüner Umgebung
217,000 €
Beschreibung
Attraktive Neubauwohnung in Mierzyn – Erstbezug mit Aufzug in idyllischer Lage
Wir präsentieren Ihnen eine moderne und lichtdurchflutete Neubauwohnung in einem eleganten, niedrigen Gebäude mit Aufzug – gelegen in dem charmanten Ort Mierzyn. Diese Immobilie ist ideal für alle, die Wert auf Komfort, stilvolle Architektur und zeitgemäße Lösungen legen.
Wohnungsaufteilung:
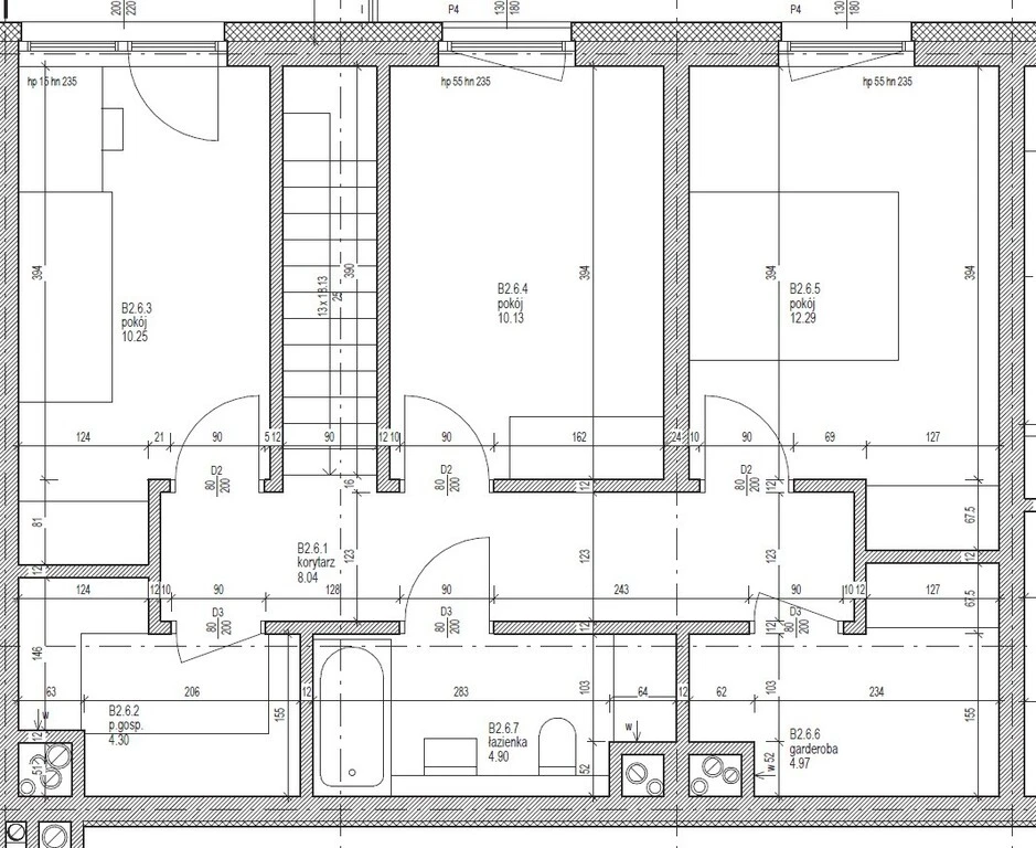
1. Etage:
Raumaufteilung und genaue Flächenangaben auf Anfrage verfügbar.
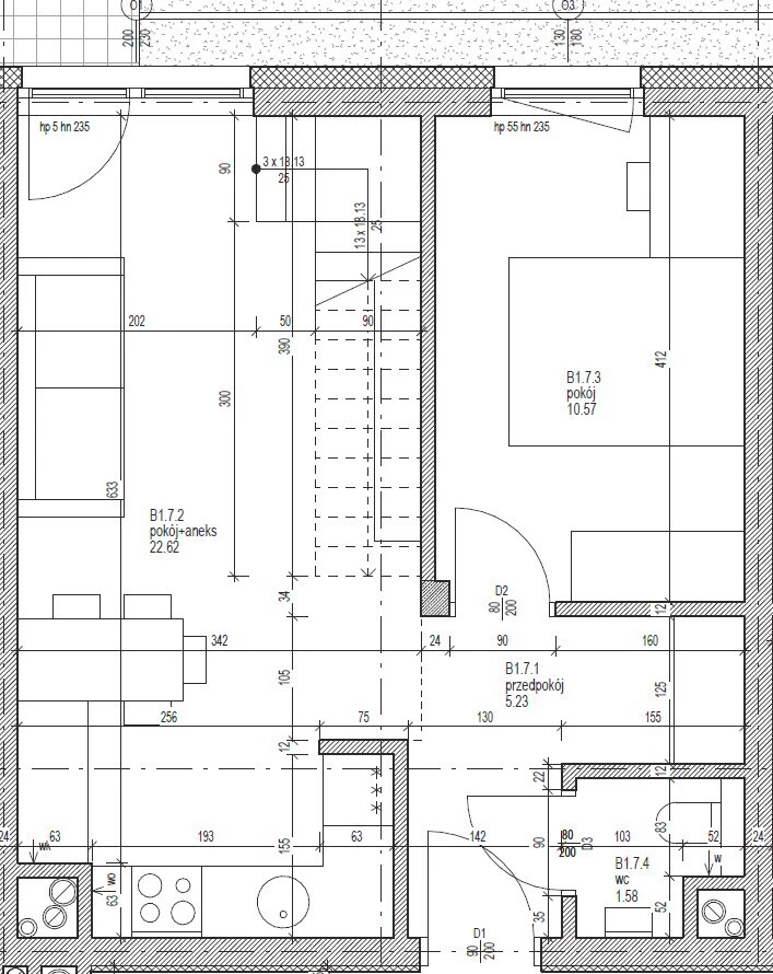
2. Etage:
Raumaufteilung und genaue Flächenangaben auf Anfrage verfügbar.
Die Wohnung wird im entwicklerfertigen Standard (Rohbau) verkauft – somit haben Sie die Möglichkeit, Ihre individuellen Wohnträume zu verwirklichen und das Interieur ganz nach Ihrem Geschmack zu gestalten.
Highlights der Immobilie:
- Neubau – Erstbezug
- Helle Räume mit modernem Zuschnitt
- Gebäude mit Aufzug – barrierearmer Zugang
- Ruhige und naturnahe Umgebung
- Zeitgemäße Heiztechnik – Fernwärme und Warmwasserzufuhr durch das städtische System SEC sorgen für ganzjährigen Komfort
- Bauprojekt abgeschlossen – Schlüsselübergabe sofort möglich!
Parkmöglichkeit:
Ein Stellplatz in der Tiefgarage kann optional erworben werden. Der Aufzug fährt bis zur Etage -1, was den Zugang zum Stellplatz besonders bequem macht.
Preis ab €9.400 (PLN 40.000).
Wir laden Sie herzlich ein, sich näher mit dieser außergewöhnlichen Gelegenheit vertraut zu machen und die Vorzüge dieser Immobilie persönlich zu erleben!
Jetzt Ihre perfekte Wohnung in Mierzyn sichern – kombinieren Sie modernes Wohnen mit naturnaher Lage!
Details
Immobilienart: Wohnung
Gesamtfläche: 94,88 m²
Gebäudetyp: Wohnblock
Baujahr: 2025
Standard: Entwicklerzustand
Bauweise (Wandmaterial): Silikat
Küchentyp: Küchenzeile
Erdgeschosswohnung: Ja
Anzahl der Etagen (inkl. Erdgeschoss): 3
Warmwasserquelle: Städtisches Netz
Heizung: Fernwärme aus dem städtischen Netz
Aufzug im Gebäude: Ja
Hinweis
- Das erste Foto in unserer Galerie wurde leicht bearbeitet, um zu veranschaulichen, wie die Wohnung aussehen könnte – beispielsweise durch eine geänderte Wandfarbe. Die nachfolgenden Bilder zeigen den tatsächlichen Zustand der Immobilie.
- Der in Euro angegebene Preis entspricht dem Preis in Złoty, stellt jedoch aufgrund von Wechselkursschwankungen stets einen Näherungswert dar. In unseren Anzeigen ist stets auch der vom Verkäufer gewünschte Preis in Złoty angegeben.
Hinweise zur polnischen Immobilienpraxis:
- Begrenzte Objektinformationen: In Polen ist es üblich, dass Immobilienanzeigen nicht den genauen Standort der Immobilie preisgeben.
- Grundrisse: Detaillierte Grundrisse werden in Exposés nicht immer bereitgestellt.
Als Immobilienbüro bieten wir deutschsprachigen Kunden eine umfassende Betreuung an. Wir vertreten Sie als Käufer.
Wir arbeiten mit geprüften Partnern zusammen (Immobilienbewertung, Steuerliche und rechtliche Beratung, Vereidigte Übersetzungen, Renovierung sanierungsbedürftiger Objekte).
Bei Kapitalanlagen übernehmen wir auch die Verwaltung der Immobilie.
Persönliche Begleitung – transparent, kompetent und auf Deutsch.
Eigenschaften der Immobilie
- Erdgeschoss
- Aufzug
Diese Immobilien könnten Sie ebenfalls interessieren
Über uns
Willkommen bei Ihrem Immobilienpartner in Stettin und Westpommern!
Wir sind ein engagiertes Immobilienbüro mit langjähriger Erfahrung auf dem lokalen Markt. In unserem Angebot finden Sie eine große Auswahl an Immobilien in Stettin sowie attraktive Objekte an der polnischen Ostseeküste – ob zum Wohnen, als Kapitalanlage oder zur Feriennutzung.
Wir sprechen Deutsch und begleiten Sie gerne professionell durch den gesamten Kauf- oder Verkaufsprozess. Ob Wohnung, Haus, Grundstück oder Ferienimmobilie – wir finden garantiert die passende Adresse für Sie!
Besuchen Sie uns auf eine Tasse Kaffee in unserem Büro oder nehmen Sie einfach Kontakt mit uns auf. Wir freuen uns auf Sie!
Zusammenarbeit mit uns
Wir sind ein Immobilienbüro, das mit Maklerbüros in der Woiwodschaft Westpommern in Polen zusammenarbeitet. Dabei vertreten wir stets nur eine Seite der Transaktion – nämlich den Kunden aus Deutschland und den DACH-Ländern. In seinem Namen verhandeln wir den Preis, prüfen das Angebot und übernehmen sämtliche Formalitäten.
Auch nach dem Kauf stehen wir unseren Kunden beratend zur Seite und bleiben mit ihnen in Kontakt. Auf Wunsch unterstützen wir auch bei der Renovierung oder umfassenden Sanierung der Immobilie. Darüber hinaus bieten wir die Verwaltung von vermieteten Immobilien an – im Raum Stettin und der näheren Umgebung.
Wir legen großen Wert auf klare Regeln und ein faires Miteinander. Unsere Provision entspricht den in Polen üblichen Sätzen: 3.69% des Kaufpreises bei Wohnungen und Häusern sowie 6,15% bei Grundstücken. Die Provision wird beim Notar im Rahmen der Vertragsunterzeichnung fällig und bezahlt.
Wir arbeiten mit einer renommierten deutschsprachigen Notarkanzlei in Stettin zusammen.
Steuerliche Vorteile
Beim Erwerb von Bestandsimmobilien fällt lediglich eine geringe Grunderwerbsteuer an, die bei Immobilien auf dem Zweitmarkt 2% und bei Immobilien auf dem Erstmarkt 0% beträgt. Darüber hinaus richtet sich die Grundsteuer in Polen nach der Fläche und ist äußerst niedrig.