Neubau-Doppelhaushälfte in Jäschendorf: Modernes Wohnen in naturnaher Umgebung
253,000 €
Beschreibung
Neubau-Doppelhaushälfte in naturnaher Lage bei Szczecin
Willkommen in Jęczydół – einem charmanten Ort in der Gemeinde Kobylanka, zwischen Szczecin und Stargard. Hier erwartet Sie ein neugebautes, großzügiges Einfamilienhaus in Doppelhausbauweise mit einer Gesamtfläche von 137 m² (inkl. Garage und Hauswirtschaftsraum), einer Wohnfläche von ca. 126 m² und einem sonnigen Grundstück von 678 m² in ruhiger, grüner Lage nahe am Wald.
Das Haus wird im modernen, energieeffizienten Baustandard bis September 2025 fertiggestellt und bietet ein hohes Maß an Wohnkomfort, ideal für Familien oder alle, die naturnahes und gleichzeitig gut angebundenes Wohnen suchen.
Highlights der Immobilie
- Große Fensterfronten für maximalen Lichteinfall
- Garage (ca. 18 m²) mit zusätzlichem Stellplatz davor
- Grundstück wird auf drei Seiten umzäunt
- Dreifachverglaste PVC-Fenster
- Elektrische Außenjalousien im Erdgeschoss inklusive
- Kaminanschluss im Wohnzimmer möglich
- Außenwände aus wärmegedämmtem Blähton-Beton (Keramzyt)
- Fußbodenheizung über Heizfolien im EG und OG
- Photovoltaikanlage auf dem Dach
- Hochwertige Dachdämmung mit 20 cm PUR-Schaum
- Moderne Lüftungsanlage mit Wärmerückgewinnung (Rekuperation)
- Einbruchhemmende Eingangstüren
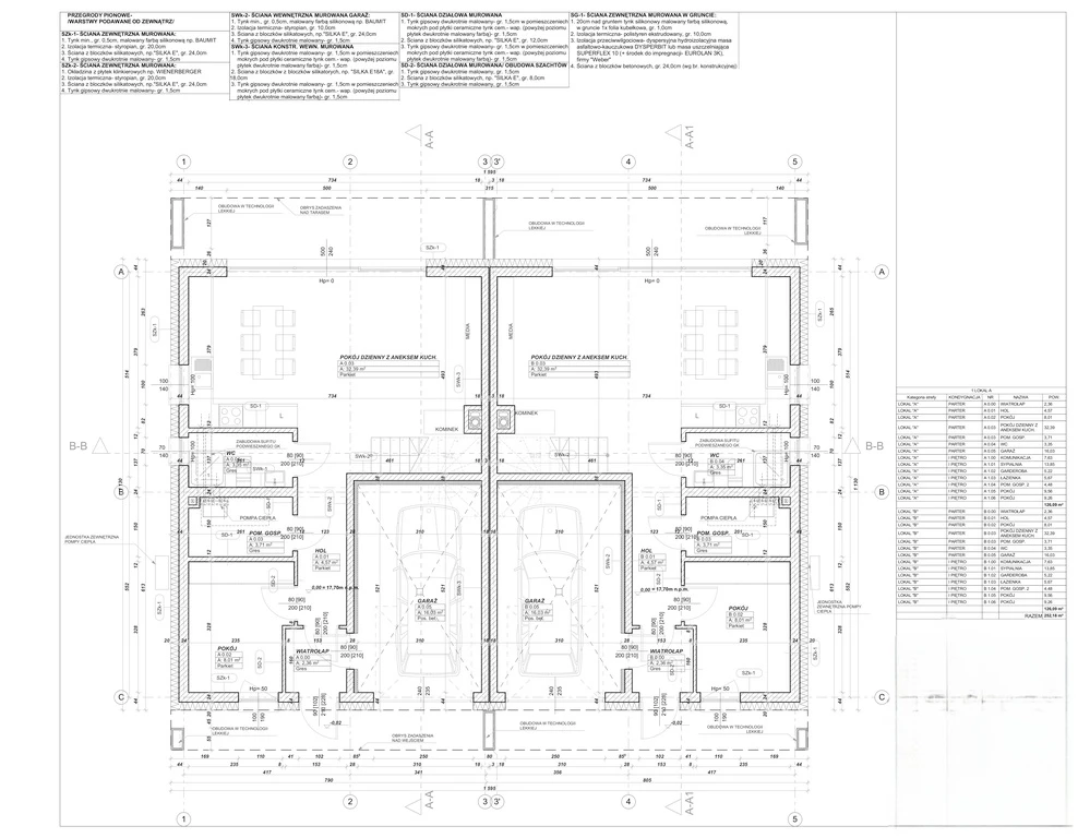
Raumaufteilung
Erdgeschoss – 70,42 m² Gesamtfläche
- Windfang: 2,36 m²
- Flur: 4,57 m²
- Wohn-/Essbereich mit offener Küche: 32,39 m²
- Badezimmer mit WC: 3,35 m²
- Hauswirtschaftsraum: 3,71 m²
- Zimmer: 8,01 m²
- Garage: 16,03 m²
Obergeschoss – 55,67 m² Gesamtfläche
- Flur: 7,63 m²
- Badezimmer: 5,67 m²
- Hauswirtschaftsraum: 4,48 m²
- Schlafzimmer: 13,58 m²
- Kinderzimmer 1: 9,56 m²
- Kinderzimmer 2: 9,26 m²
- Ankleidezimmer: 5,22 m²
Umgebung & Infrastruktur
Das Umfeld ist geprägt von ruhigen Einfamilienhäusern und Doppelhaushälften. In Jęczydół finden Sie alles für den täglichen Bedarf: Einkaufsmöglichkeiten, Post, Kirche, Bushaltestelle, Spielplatz sowie Rad- und Spazierwege. Die Anbindung an Szczecin und Stargard ist hervorragend – beide Städte sind in ca. 10 Minuten über die Schnellstraße erreichbar.
Preis
Der Preis im hochwertigen Bauträgerstandard beträgt ca. €251.408 (PLN 1.071.000).
Gönnen Sie sich Ihr neues Zuhause in grüner Lage mit innovativer Ausstattung und perfekter Anbindung – wir freuen uns auf Ihren Besuch!
Details
Immobilientyp: Doppelhaushälfte
Gesamtfläche: 137,15 m²
Nutzfläche: 126,09 m²
Grundstücksfläche: 678,00 m²
Grundstücksform: Rechteckig
Baujahr: 2025
Bauzustand: Schlüsselfertig (Entwicklerstandard)
Bauweise: Betonblöcke
Etagenanzahl (inkl. Erdgeschoss): 1
Zimmergrößen: 32,39 m², 13,58 m², 9,56 m², 9,26 m², 8,01 m²
Küche: Halboffen
Küchengröße: 10 m²
Anzahl der Badezimmer: 2
Badezimmergrößen: 5,67 m² und 3,35 m²
Dachdeckung: Keramikziegel
Garage: Ja (1 Stellplatz)
Garten: Ja
Terrasse: Ja (1 Terrasse)
Ankleidezimmer: Ja
Kamin: Ja
Stromanschluss: Ja
400V Starkstrom: Ja
Internetzugang: Ja
Zusätzliche Informationen:
Ein modernes und durchdacht geplantes Doppelhaus mit großzügigem Grundriss in einer ruhigen Lage. Die Immobilie verfügt über fünf Zimmer, zwei Badezimmer, einen praktischen Ankleideraum sowie eine halboffene Küche. Im Wohnbereich befindet sich ein Kaminanschluss für gemütliche Abende. Der Zugang zur Terrasse und dem Garten bietet viel Raum zur Erholung im Freien.
Nebenkosten:
Notarkosten ab ca. €940 (PLN 4.000)
Grundbucheintrag ca. €235 (PLN 1.000)
Hinweis
- Das erste Foto in unserer Galerie wurde leicht bearbeitet, um zu veranschaulichen, wie die Wohnung aussehen könnte – beispielsweise durch eine geänderte Wandfarbe. Die nachfolgenden Bilder zeigen den tatsächlichen Zustand der Immobilie.
- Der in Euro angegebene Preis entspricht dem Preis in Złoty, stellt jedoch aufgrund von Wechselkursschwankungen stets einen Näherungswert dar. In unseren Anzeigen ist stets auch der vom Verkäufer gewünschte Preis in Złoty angegeben.
Hinweise zur polnischen Immobilienpraxis:
- Begrenzte Objektinformationen: In Polen ist es üblich, dass Immobilienanzeigen nicht den genauen Standort der Immobilie preisgeben.
- Grundrisse: Detaillierte Grundrisse werden in Exposés nicht immer bereitgestellt.
Als Immobilienbüro bieten wir deutschsprachigen Kunden eine umfassende Betreuung an. Wir vertreten Sie als Käufer.
Wir arbeiten mit geprüften Partnern zusammen (Immobilienbewertung, Steuerliche und rechtliche Beratung, Vereidigte Übersetzungen, Renovierung sanierungsbedürftiger Objekte).
Bei Kapitalanlagen übernehmen wir auch die Verwaltung der Immobilie.
Persönliche Begleitung – transparent, kompetent und auf Deutsch.
Eigenschaften der Immobilie
- über dem Wasser
- Garage
- Garten
- Garderobe
- Kamin
- Terrasse
Diese Immobilien könnten Sie ebenfalls interessieren
Über uns
Willkommen bei Ihrem Immobilienpartner in Stettin und Westpommern!
Wir sind ein engagiertes Immobilienbüro mit langjähriger Erfahrung auf dem lokalen Markt. In unserem Angebot finden Sie eine große Auswahl an Immobilien in Stettin sowie attraktive Objekte an der polnischen Ostseeküste – ob zum Wohnen, als Kapitalanlage oder zur Feriennutzung.
Wir sprechen Deutsch und begleiten Sie gerne professionell durch den gesamten Kauf- oder Verkaufsprozess. Ob Wohnung, Haus, Grundstück oder Ferienimmobilie – wir finden garantiert die passende Adresse für Sie!
Besuchen Sie uns auf eine Tasse Kaffee in unserem Büro oder nehmen Sie einfach Kontakt mit uns auf. Wir freuen uns auf Sie!
Zusammenarbeit mit uns
Wir sind ein Immobilienbüro, das mit Maklerbüros in der Woiwodschaft Westpommern in Polen zusammenarbeitet. Dabei vertreten wir stets nur eine Seite der Transaktion – nämlich den Kunden aus Deutschland und den DACH-Ländern. In seinem Namen verhandeln wir den Preis, prüfen das Angebot und übernehmen sämtliche Formalitäten.
Auch nach dem Kauf stehen wir unseren Kunden beratend zur Seite und bleiben mit ihnen in Kontakt. Auf Wunsch unterstützen wir auch bei der Renovierung oder umfassenden Sanierung der Immobilie. Darüber hinaus bieten wir die Verwaltung von vermieteten Immobilien an – im Raum Stettin und der näheren Umgebung.
Wir legen großen Wert auf klare Regeln und ein faires Miteinander. Unsere Provision entspricht den in Polen üblichen Sätzen: 3.69% des Kaufpreises bei Wohnungen und Häusern sowie 6,15% bei Grundstücken. Die Provision wird beim Notar im Rahmen der Vertragsunterzeichnung fällig und bezahlt.
Wir arbeiten mit einer renommierten deutschsprachigen Notarkanzlei in Stettin zusammen.
Steuerliche Vorteile
Beim Erwerb von Bestandsimmobilien fällt lediglich eine geringe Grunderwerbsteuer an, die bei Immobilien auf dem Zweitmarkt 2% und bei Immobilien auf dem Erstmarkt 0% beträgt. Darüber hinaus richtet sich die Grundsteuer in Polen nach der Fläche und ist äußerst niedrig.