Moderne Doppelhaushälften mit Garten in ruhiger Lage von Stettin-Kijewo kaufen
234,000 € 244,000 €
Beschreibung
Exklusive Gelegenheit in Szczecin-Kijewo – Moderne Doppelhaushälften in ruhiger Lage
Willkommen zu einem neuen Wohnprojekt im attraktiven Stadtteil Szczecin-Kijewo auf der rechten Oderseite. Diese moderne Investition umfasst zwei Doppelhäuser mit insgesamt vier Wohneinheiten – davon stehen aktuell drei Einheiten zum Verkauf: eine Eck- sowie zwei Mittelhäuser.
Grundstück und Außenbereich
Die gesamte Grundstücksfläche beträgt 1.139 m². Jeder Wohneinheit ist ein Anteil von ca. 285 m² zugeordnet, inklusive eines privaten Gartens von ca. 100–120 m² – ideal für Familien, Gartenfreunde oder entspannte Sommerabende.
Zudem gehören zu jeder Einheit zwei private Stellplätze – bequem und praktisch direkt vor dem Haus.
Wohnfläche und Aufteilung
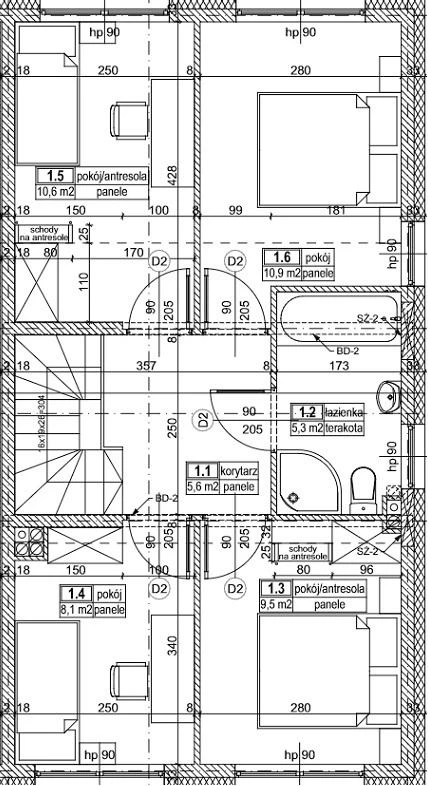
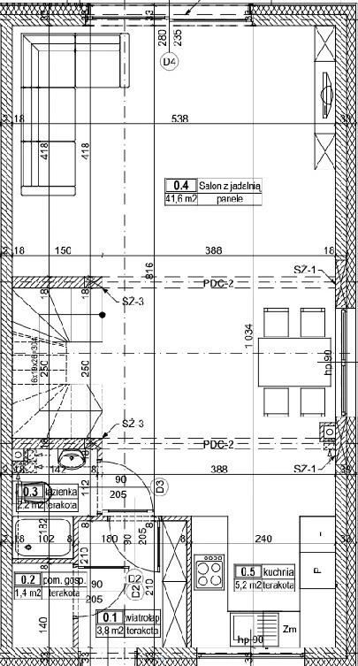
Die Wohneinheiten bieten eine durchdachte Raumaufteilung über zwei Etagen sowie eine zusätzliche offene Galeriefläche. Die gesamte Wohnfläche beträgt großzügige 111,8 m².
Erdgeschoss:
- Wohnzimmer mit Essbereich – 41,6 m²
- Küche – 5,2 m²
- Badezimmer mit Dusche – 2,2 m²
- Hauswirtschaftsraum – 1,4 m²
- Windfang – 3,8 m²
Obergeschoss:
- Vier Schlafzimmer: 10,9 m², 10,6 m², 9,5 m² und 8,1 m²
- Badezimmer – 5,3 m²
- Flur – 5,6 m²
- Galerie/Offener Raum – 7,6 m²
Energieeffiziente Bauweise
Die Gebäude werden in moderner Passivhausbauweise errichtet – auf einer gedämmten Bodenplatte, mit 15 cm Styropor gedämmt und aus langlebigem Silikatstein gebaut. Für Heizwärme und Warmwasser sorgt eine effiziente Wärmepumpe. Zusätzlich werden Photovoltaikanlagen installiert – ein Schritt in Richtung energieeffizientem, nachhaltigem Wohnen.
Versorgung und Anschlüsse
Die Wasserversorgung erfolgt aus dem städtischen Netz. Es bestehen Anschlüsse an die Kanalisation und für Regenwasser.
Lage
Kijewo überzeugt durch ruhige Wohnatmosphäre und gleichzeitig hervorragende Infrastruktur. Einkaufsmöglichkeiten, Schulen und Dienstleistungen sind schnell erreichbar. Die Nähe zur Puszcza Bukowa (Buchheide), zu Radwegen und zur Natur bietet ideale Voraussetzungen für Naherholung. Dazu kommt eine sehr gute Anbindung an die Innenstadt sowie Ausfallstraßen – ideal sowohl für Pendler als auch für Familien.
Fazit
Ein modernes Zuhause mit großzügigem Garten, durchdachter Architektur und nachhaltiger Ausstattung in bester Lage von Szczecin. Vereinbaren Sie gern einen Besichtigungstermin – wir freuen uns auf Ihre Anfrage!
Details
Immobilienart: Doppelhaushälfte
Verfügbar ab: 31.12.2025
Stadtteil: Kijewo
Gesamtfläche: 120,00 m²
Grundstücksfläche: 284,00 m²
Grundstücksform: Rechteckig
Wohnfläche: 111,80 m²
Eigentumsform des Grundstücks: Eigentum
Haustyp: Doppelhaushälfte
Baujahr: 2025
Standard: Ausbauzustand (Neubau / Entwicklerstandard)
Zustand des Gebäudes: Neuwertig / Ideal
Wandmaterial: Ziegel
Anzahl der Etagen (inkl. Erdgeschoss): 1
Medien und Anschlüsse:
- Telefonanschluss: Ja
- Stromanschluss: Ja
- Starkstromanschluss (400 V): Ja
- Internet: Ja
- Kabelfernsehen: Ja
Dach: Betonziegel
Garage: Ja
Garten: Ja
Terrasse: Ja
Anzahl der Terrassen: 1
Diese moderne Doppelhaushälfte befindet sich im beliebten Stadtteil Kijewo und bietet mit einer Wohnfläche von 111,80 m² sowie einer Gesamtfläche von 120 m² genügend Platz für Familien oder Paare, die Komfort und Funktionalität suchen. Das rechteckige Grundstück mit einer Fläche von 284 m² ist Eigentum und ermöglicht vielfältige Nutzungsmöglichkeiten im Gartenbereich.
Das Haus wird im Jahr 2025 fertiggestellt und im begehrten Entwicklerstandard angeboten – dies bedeutet, dass Sie die letzten Ausbauschritte nach Ihren eigenen Vorstellungen gestalten können. Dank solider Ziegelbauweise und modernstem Baustandard befindet sich das Gebäude in einem idealen Zustand.
Die Immobilie ist vollständig mit Medien ausgestattet – Strom (inkl. 400V Starkstrom), Telefonleitung, Internet sowie Kabelfernsehen stehen zur Verfügung. Das Dach ist mit langlebigen Betonziegeln gedeckt, was für eine hohe Witterungsbeständigkeit sorgt.
Zur Ausstattung gehört eine Garage sowie ein schöner Gartenbereich – ideal zum Entspannen oder Spielen mit den Kindern. Zusätzlich lädt eine Terrasse zum Verweilen im Freien ein.
Ein ideales Zuhause für alle, die urbanes Wohnen mit Naturverbundenheit kombinieren möchten.
Hinweis
- Das erste Foto in unserer Galerie wurde leicht bearbeitet, um zu veranschaulichen, wie die Wohnung aussehen könnte – beispielsweise durch eine geänderte Wandfarbe. Die nachfolgenden Bilder zeigen den tatsächlichen Zustand der Immobilie.
- Der in Euro angegebene Preis entspricht dem Preis in Złoty, stellt jedoch aufgrund von Wechselkursschwankungen stets einen Näherungswert dar. In unseren Anzeigen ist stets auch der vom Verkäufer gewünschte Preis in Złoty angegeben.
Hinweise zur polnischen Immobilienpraxis:
- Begrenzte Objektinformationen: In Polen ist es üblich, dass Immobilienanzeigen nicht den genauen Standort der Immobilie preisgeben.
- Grundrisse: Detaillierte Grundrisse werden in Exposés nicht immer bereitgestellt.
Als Immobilienbüro bieten wir deutschsprachigen Kunden eine umfassende Betreuung an. Wir vertreten Sie als Käufer.
Wir arbeiten mit geprüften Partnern zusammen (Immobilienbewertung, Steuerliche und rechtliche Beratung, Vereidigte Übersetzungen, Renovierung sanierungsbedürftiger Objekte).
Bei Kapitalanlagen übernehmen wir auch die Verwaltung der Immobilie.
Persönliche Begleitung – transparent, kompetent und auf Deutsch.
Eigenschaften der Immobilie
- Garage
- Garten
- Terrasse
Diese Immobilien könnten Sie ebenfalls interessieren
Über uns
Willkommen bei Ihrem Immobilienpartner in Stettin und Westpommern!
Wir sind ein engagiertes Immobilienbüro mit langjähriger Erfahrung auf dem lokalen Markt. In unserem Angebot finden Sie eine große Auswahl an Immobilien in Stettin sowie attraktive Objekte an der polnischen Ostseeküste – ob zum Wohnen, als Kapitalanlage oder zur Feriennutzung.
Wir sprechen Deutsch und begleiten Sie gerne professionell durch den gesamten Kauf- oder Verkaufsprozess. Ob Wohnung, Haus, Grundstück oder Ferienimmobilie – wir finden garantiert die passende Adresse für Sie!
Besuchen Sie uns auf eine Tasse Kaffee in unserem Büro oder nehmen Sie einfach Kontakt mit uns auf. Wir freuen uns auf Sie!
Zusammenarbeit mit uns
Wir sind ein Immobilienbüro, das mit Maklerbüros in der Woiwodschaft Westpommern in Polen zusammenarbeitet. Dabei vertreten wir stets nur eine Seite der Transaktion – nämlich den Kunden aus Deutschland und den DACH-Ländern. In seinem Namen verhandeln wir den Preis, prüfen das Angebot und übernehmen sämtliche Formalitäten.
Auch nach dem Kauf stehen wir unseren Kunden beratend zur Seite und bleiben mit ihnen in Kontakt. Auf Wunsch unterstützen wir auch bei der Renovierung oder umfassenden Sanierung der Immobilie. Darüber hinaus bieten wir die Verwaltung von vermieteten Immobilien an – im Raum Stettin und der näheren Umgebung.
Wir legen großen Wert auf klare Regeln und ein faires Miteinander. Unsere Provision entspricht den in Polen üblichen Sätzen: 3.69% des Kaufpreises bei Wohnungen und Häusern sowie 6,15% bei Grundstücken. Die Provision wird beim Notar im Rahmen der Vertragsunterzeichnung fällig und bezahlt.
Wir arbeiten mit einer renommierten deutschsprachigen Notarkanzlei in Stettin zusammen.
Steuerliche Vorteile
Beim Erwerb von Bestandsimmobilien fällt lediglich eine geringe Grunderwerbsteuer an, die bei Immobilien auf dem Zweitmarkt 2% und bei Immobilien auf dem Erstmarkt 0% beträgt. Darüber hinaus richtet sich die Grundsteuer in Polen nach der Fläche und ist äußerst niedrig.