Moderne Doppelhaushälfte mit Garten in ruhiger Lage von Stettin-Wielgowo
361,000 €
Beschreibung
Doppelhaushälfte in ruhiger Lage von Szczecin-Wielgowo
Zum Verkauf steht eine moderne Doppelhaushälfte in einer ruhigen und grünen Gegend auf der rechten Uferseite von Szczecin, im beliebten Stadtteil Wielgowo. Die Lage bietet hervorragende Anbindung an das Stadtzentrum sowie unmittelbare Nähe zur Natur – in der Umgebung befinden sich ein schöner Wald für Spaziergänge sowie eine Bushaltestelle mit regelmäßiger Anbindung alle 20 Minuten.
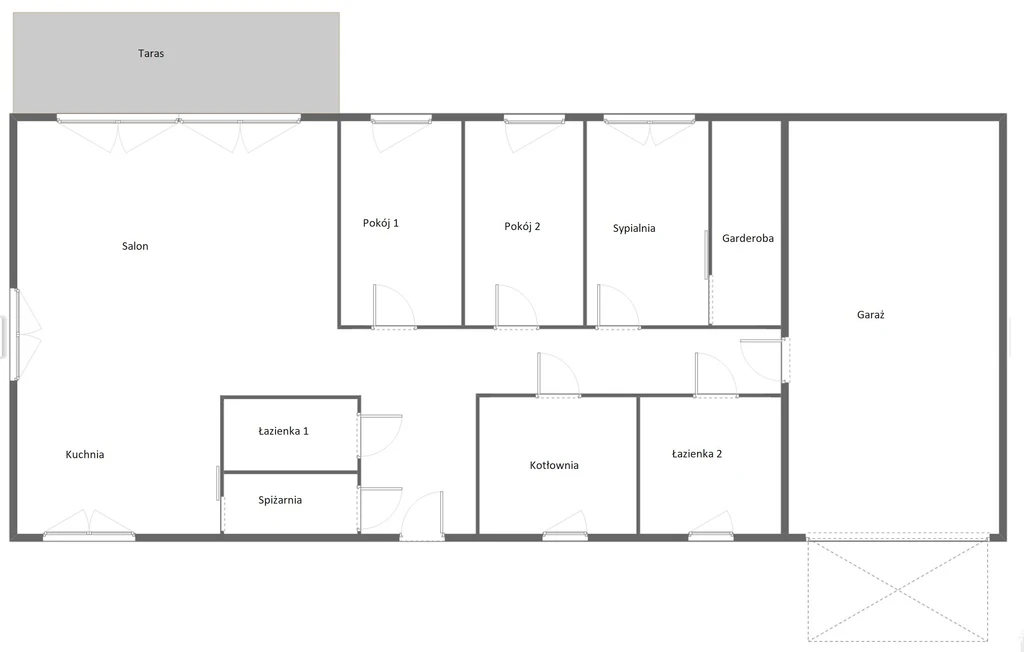
Die Immobilie überzeugt durch eine durchdachte Raumaufteilung und eine hochwertige Ausstattung. Die Gesamtfläche beträgt ca. 153,72 m² und beinhaltet:
- ein großzügiges, helles Wohnzimmer mit offener Küche und direktem Zugang zum Garten,
- zwei gut geschnittene Zimmer,
- ein Hauptschlafzimmer mit begehbarem Kleiderschrank,
- ein Badezimmer mit Badewanne, Dusche, WC und Fenster,
- ein zusätzliches Badezimmer mit Dusche und WC,
- eine praktische Speisekammer,
- ein Eingangsbereich mit Windfang,
- ein Heizungsraum kombiniert mit Waschküche,
- eine integrierte Garage für ein Fahrzeug.
Ausstattung & Highlights:
- Hochwertige Bauausführung mit modernen Materialien
- Fliesen in Holzoptik und glatte, gestrichene Wände
- Energiesparende Bauweise: 3-fach verglaste Fenster mit Argon-Füllung, 20 cm Wärmedämmung
- Fußbodenheizung mit Gasbetrieb in allen Räumen
- Fenster mit einbruchhemmenden Rollläden und Insektenschutzgittern
- Neu installierter, wartungsfreier Warmwasserspeicher sowie Lüftungsanlage mit Wärmerückgewinnung
- Alarminstallation vorbereitet (derzeit nicht aktiviert)
Ausbaumöglichkeit:
Das nicht ausgebaute Dachgeschoss mit ca. 60 m² Fläche verfügt über alle notwendigen Anschlüsse und bietet Potenzial für zusätzliche Schlafzimmer und ein weiteres Bad, individuell nach Wunsch gestaltbar.
Außenbereich:
Der liebevoll angelegte Garten mit zahlreichen Bepflanzungen sowie eine überdachte Terrasse laden zum Entspannen und Genießen der Natur ein.
Lage:
Wielgowo ist ein grüner, familienfreundlicher Stadtteil von Szczecin mit guter Infrastruktur. Hier genießen Sie Ruhe und naturnahe Erholung bei gleichzeitig guter Anbindung an das Stadtleben.
Hinweis:
Die Immobilie eignet sich ideal für Familien oder Paare, die ein modernes Zuhause in ruhiger Nachbarschaft suchen.
Vereinbaren Sie jetzt einen Besichtigungstermin und entdecken Sie Ihr neues Zuhause in Szczecin-Wielgowo.
Details
Immobilienart: Doppelhaushälfte
Stadtteil / Wohngebiet: Wielgowo
Lage des Grundstücks: Flaches Gelände
Gesamtfläche: 153,72 m²
Grundstücksfläche: 792,00 m²
Grundstücksform: Rechteckig
Nutzfläche: 153,72 m²
Haustyp: Doppelhaushälfte
Baujahr: 2019
Standard: Perfekt / Einzugsbereit
Gebäudestatus: In einem hervorragenden Zustand
Wandmaterial: Sonstiges
Küchentyp: Offene Küche
Badezimmeranzahl: 2
Anzahl der Etagen (inkl. EG): 1
Warmwasserquelle: Zweikreis-Gastherme
Heizung: Gaszentralheizung, Fußbodenheizung
Stromanschluss: Ja
Gasanschluss: Ja
Abwasser: Öffentliches Abwassersystem
Wasserversorgung: Stadtwasser
Fenstertyp: Kunststofffenster
Dacheindeckung: Dachziegel
Zaunart: Metallzaun
Garage: Ja
Garagenstellplätze: 1
Terrasse: Ja
Anzahl Terrassen: 1
In der Nähe befinden sich:
- Ein Waldgebiet
- Kindergarten
- Grundschule
- Öffentliche Verkehrsmittel
- Krankenhaus
Diese moderne und gepflegte Doppelhaushälfte befindet sich im ruhigen und grünen Stadtteil Wielgowo. Das Haus wurde im Jahr 2019 erbaut und zeichnet sich durch seinen idealen Zustand sowie eine durchdachte Raumaufteilung aus. Die Wohnfläche von 153,72 m² erstreckt sich über eine Ebene und umfasst zwei Badezimmer sowie ein großzügiges Wohn- und Esszimmer mit einer offenen Küche.
Die Immobilie verfügt über moderne Installationen – eine gasbetriebene Fußbodenheizung sorgt für angenehme Wärme, unterstützt durch eine effiziente Zweikreis-Gastherme.
Zum Haus gehört ein 792 m² großes Grundstück in rechteckiger Form mit gut nutzbarer Gartenfläche sowie eine gemütliche Terrasse mit Zugang zum Garten. Zusätzlich steht eine Garage mit einem Stellplatz zur Verfügung.
Die Lage in Wielgowo bietet Ruhe sowie eine hervorragende Anbindung an die Infrastruktur. In direkter Nähe befinden sich ein Wald, Kindergarten, Schule, Krankenhaus sowie öffentliche Verkehrsmittel.
Ein ideales Zuhause für Familien, die Wert auf Komfort, modernes Wohnen und die Nähe zur Natur legen.
Hinweis
- Das erste Foto in unserer Galerie wurde leicht bearbeitet, um zu veranschaulichen, wie die Wohnung aussehen könnte – beispielsweise durch eine geänderte Wandfarbe. Die nachfolgenden Bilder zeigen den tatsächlichen Zustand der Immobilie.
- Der in Euro angegebene Preis entspricht dem Preis in Złoty, stellt jedoch aufgrund von Wechselkursschwankungen stets einen Näherungswert dar. In unseren Anzeigen ist stets auch der vom Verkäufer gewünschte Preis in Złoty angegeben.
Hinweise zur polnischen Immobilienpraxis:
- Begrenzte Objektinformationen: In Polen ist es üblich, dass Immobilienanzeigen nicht den genauen Standort der Immobilie preisgeben.
- Grundrisse: Detaillierte Grundrisse werden in Exposés nicht immer bereitgestellt.
Als Immobilienbüro bieten wir deutschsprachigen Kunden eine umfassende Betreuung an. Wir vertreten Sie als Käufer.
Wir arbeiten mit geprüften Partnern zusammen (Immobilienbewertung, Steuerliche und rechtliche Beratung, Vereidigte Übersetzungen, Renovierung sanierungsbedürftiger Objekte).
Bei Kapitalanlagen übernehmen wir auch die Verwaltung der Immobilie.
Persönliche Begleitung – transparent, kompetent und auf Deutsch.
Eigenschaften der Immobilie
- Gas
- Garage
- Terrasse
- Garten
Diese Immobilien könnten Sie ebenfalls interessieren
Über uns
Willkommen bei Ihrem Immobilienpartner in Stettin und Westpommern!
Wir sind ein engagiertes Immobilienbüro mit langjähriger Erfahrung auf dem lokalen Markt. In unserem Angebot finden Sie eine große Auswahl an Immobilien in Stettin sowie attraktive Objekte an der polnischen Ostseeküste – ob zum Wohnen, als Kapitalanlage oder zur Feriennutzung.
Wir sprechen Deutsch und begleiten Sie gerne professionell durch den gesamten Kauf- oder Verkaufsprozess. Ob Wohnung, Haus, Grundstück oder Ferienimmobilie – wir finden garantiert die passende Adresse für Sie!
Besuchen Sie uns auf eine Tasse Kaffee in unserem Büro oder nehmen Sie einfach Kontakt mit uns auf. Wir freuen uns auf Sie!
Zusammenarbeit mit uns
Wir sind ein Immobilienbüro, das mit Maklerbüros in der Woiwodschaft Westpommern in Polen zusammenarbeitet. Dabei vertreten wir stets nur eine Seite der Transaktion – nämlich den Kunden aus Deutschland und den DACH-Ländern. In seinem Namen verhandeln wir den Preis, prüfen das Angebot und übernehmen sämtliche Formalitäten.
Auch nach dem Kauf stehen wir unseren Kunden beratend zur Seite und bleiben mit ihnen in Kontakt. Auf Wunsch unterstützen wir auch bei der Renovierung oder umfassenden Sanierung der Immobilie. Darüber hinaus bieten wir die Verwaltung von vermieteten Immobilien an – im Raum Stettin und der näheren Umgebung.
Wir legen großen Wert auf klare Regeln und ein faires Miteinander. Unsere Provision entspricht den in Polen üblichen Sätzen: 3.69% des Kaufpreises bei Wohnungen und Häusern sowie 6,15% bei Grundstücken. Die Provision wird beim Notar im Rahmen der Vertragsunterzeichnung fällig und bezahlt.
Wir arbeiten mit einer renommierten deutschsprachigen Notarkanzlei in Stettin zusammen.
Steuerliche Vorteile
Beim Erwerb von Bestandsimmobilien fällt lediglich eine geringe Grunderwerbsteuer an, die bei Immobilien auf dem Zweitmarkt 2% und bei Immobilien auf dem Erstmarkt 0% beträgt. Darüber hinaus richtet sich die Grundsteuer in Polen nach der Fläche und ist äußerst niedrig.