Moderne Doppelhaushälfte in Möhringen mit Garten und hochwertiger Ausstattung
272,000 €
Beschreibung
Moderner Doppelhaushälfte in Mierzyn – Wohnkomfort auf hohem Niveau
Willkommen in Ihrem neuen Zuhause – einer modernen Doppelhaushälfte im begehrten Mierzyn, nur wenige Schritte von einer Grundschule und allen wichtigen Einrichtungen des täglichen Bedarfs entfernt. Das Haus wird im gehobenen "Entwicklerstandard Plus" angeboten, mit durchdachter Ausstattung und nachhaltiger Haustechnik – ideal für Familien mit hohen Ansprüchen.
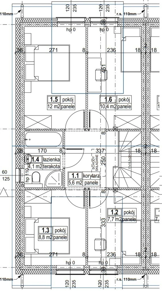
Raumaufteilung und Wohnfläche
Die Immobilie verfügt über eine großzügige Wohnfläche von 100,70 m² auf einem rechteckigen Grundstück von 344 m². Die Räume verteilen sich wie folgt:
Erdgeschoss: - Heller Wohn- und Essbereich: 40 m² - Küche mit Fenster: 5 m² - Gäste-WC mit Dusche: 2,1 m² - Windfang/Diele: 4,5 m²
Obergeschoss: - Schlafzimmer: 12 m² - Kinderzimmer 1: 10,4 m² - Kinderzimmer 2: 8,8 m² - Arbeits-/Gästezimmer: 7,7 m² - Bad mit Dusche und WC: 4,1 m² - Flur: 5,6 m²
Das Dachgeschoss ist über eine klappbare Holztreppe zugänglich und nutzbar.
Ausstattung – Hoher Standard inklusive
Diese stilvolle Doppelhaushälfte wurde mit zweischaliger Trennwand zum Nachbarhaus (mit Schallschutzdämmschicht aus Styropor) gebaut. Die einzelnen Elemente der hochwertigen Ausstattung:
- Effiziente Luft-Wasser-Wärmepumpe für Heizung und Warmwasser
- Fußbodenheizung im gesamten Haus
- Rekuperationssystem mit Belüftungseinheit
- Dreifachverglaste Kunststofffenster (Profil Salamander) mit warmer Montage
- Hebeschiebetür zur Terrasse
- Elektrische Außenrollläden (Erdgeschoss)
- Eingangstür in Anthrazit
- Ausbau einer Internet-, TV- und Alarmanlageverteilanlage
- Vorverkabelung für Überwachungskameras
- Ziegelbauweise mit 20 cm Außendämmung
- Wand- und Deckenausbau mit Gipskartonplatten
- Innengipsputz für alle Innenwände
- Farbiger mineralischer Außenputz kombiniert mit PVC-Holzoptikpaneelen
- Dachdeckung mit flacher, anthrazitfarbener Tondachziegel
- Regenrinnen und Fallrohre in Anthrazit
- Außenwasseranschluss für Gartenpflege vorhanden
- Grundstück ist begradigt, Gartenbereich im hinteren Teil umzäunt
- Zwei Stellplätze mit Pflaster- bzw. Rasengittersteinbelag
Weitere Vorteile
- Ruhige Lage an einer Nebenstraße mit guter Anbindung
- Modernes Heiz- und Belüftungssystem macht das Haus energieeffizient
- Keine weiteren Ausbauarbeiten notwendig, da alle technischen Installationen bereits vorbereitet sind
- Im attraktivem Neubaugebiet mit Grünflächen, Spielplätzen und Nähe zu Kindergarten, Schule, Uni, Apotheke und Wald
Ein ideales Zuhause für Familien, die stilvolles Wohnen mit technischem Komfort und ruhiger Lage verbinden möchten.
Erleben Sie modernes Wohnen im Herzen von Mierzyn – wir freuen uns auf Ihre Besichtigung!
Details
Immobilienart: Doppelhaushälfte
Grundstückslage: Ebenes Gelände
Gesamtfläche: 100,70 m²
Grundstücksfläche: 344,00 m²
Grundstücksform: Rechteck
Nutzfläche: 100,70 m²
Baujahr: 2025
Ausbaustandard: Entwicklerstandard
Gebäudestatus: Entwicklerstandard
Wandmaterial: Ziegel
Küchentyp: Mit Fenster
Küchenfläche: 5 m²
Anzahl der Badezimmer: 2
Badezimmerflächen: 2,1 m² + 4,1 m²
Zufahrtsstraße: Ruhige Straße
Zimmerflächen: 40,5 m² + 12 m² + 10,4 m² + 8,8 m² + 7,7 m²
Etagenanzahl (inkl. EG): 1
Heizungsart: Wärmepumpe
Stromanschluss: Ja
Starkstrom (400 V): Ja
Abwasser: Öffentliches Kanalsystem
Wasseranschluss: Stadtwasser
Belüftung: Ja
Internet: Ja
Kabelfernsehen: Ja
Alarmanlage: Ja
Fensterart: Kunststofffenster
Dachdeckung: Keramikdachziegel
Dachgeschoss: Ausgebaut
Größe des Gartens: Ja
Garten: Ja
Garderobe / Ankleideraum: Ja
Garage: Ja
Stellplätze in der Garage: 2
Lage & Umgebung:
- Wald: In der Nähe
- Kindergarten: In der Nähe
- Grundschule: In der Nähe
- Hochschule: In der Nähe
- Apotheke: In der Nähe
- Spielplatz: In der Nähe
Hinweis
- Das erste Foto in unserer Galerie wurde leicht bearbeitet, um zu veranschaulichen, wie die Wohnung aussehen könnte – beispielsweise durch eine geänderte Wandfarbe. Die nachfolgenden Bilder zeigen den tatsächlichen Zustand der Immobilie.
- Der in Euro angegebene Preis entspricht dem Preis in Złoty, stellt jedoch aufgrund von Wechselkursschwankungen stets einen Näherungswert dar. In unseren Anzeigen ist stets auch der vom Verkäufer gewünschte Preis in Złoty angegeben.
Hinweise zur polnischen Immobilienpraxis:
- Begrenzte Objektinformationen: In Polen ist es üblich, dass Immobilienanzeigen nicht den genauen Standort der Immobilie preisgeben.
- Grundrisse: Detaillierte Grundrisse werden in Exposés nicht immer bereitgestellt.
Als Immobilienbüro bieten wir deutschsprachigen Kunden eine umfassende Betreuung an. Wir vertreten Sie als Käufer.
Wir arbeiten mit geprüften Partnern zusammen (Immobilienbewertung, Steuerliche und rechtliche Beratung, Vereidigte Übersetzungen, Renovierung sanierungsbedürftiger Objekte).
Bei Kapitalanlagen übernehmen wir auch die Verwaltung der Immobilie.
Persönliche Begleitung – transparent, kompetent und auf Deutsch.
Eigenschaften der Immobilie
- Garage
- Garten
- Garderobe
- Gas
Diese Immobilien könnten Sie ebenfalls interessieren
Über uns
Willkommen bei Ihrem Immobilienpartner in Stettin und Westpommern!
Wir sind ein engagiertes Immobilienbüro mit langjähriger Erfahrung auf dem lokalen Markt. In unserem Angebot finden Sie eine große Auswahl an Immobilien in Stettin sowie attraktive Objekte an der polnischen Ostseeküste – ob zum Wohnen, als Kapitalanlage oder zur Feriennutzung.
Wir sprechen Deutsch und begleiten Sie gerne professionell durch den gesamten Kauf- oder Verkaufsprozess. Ob Wohnung, Haus, Grundstück oder Ferienimmobilie – wir finden garantiert die passende Adresse für Sie!
Besuchen Sie uns auf eine Tasse Kaffee in unserem Büro oder nehmen Sie einfach Kontakt mit uns auf. Wir freuen uns auf Sie!
Zusammenarbeit mit uns
Wir sind ein Immobilienbüro, das mit Maklerbüros in der Woiwodschaft Westpommern in Polen zusammenarbeitet. Dabei vertreten wir stets nur eine Seite der Transaktion – nämlich den Kunden aus Deutschland und den DACH-Ländern. In seinem Namen verhandeln wir den Preis, prüfen das Angebot und übernehmen sämtliche Formalitäten.
Auch nach dem Kauf stehen wir unseren Kunden beratend zur Seite und bleiben mit ihnen in Kontakt. Auf Wunsch unterstützen wir auch bei der Renovierung oder umfassenden Sanierung der Immobilie. Darüber hinaus bieten wir die Verwaltung von vermieteten Immobilien an – im Raum Stettin und der näheren Umgebung.
Wir legen großen Wert auf klare Regeln und ein faires Miteinander. Unsere Provision entspricht den in Polen üblichen Sätzen: 3.69% des Kaufpreises bei Wohnungen und Häusern sowie 6,15% bei Grundstücken. Die Provision wird beim Notar im Rahmen der Vertragsunterzeichnung fällig und bezahlt.
Wir arbeiten mit einer renommierten deutschsprachigen Notarkanzlei in Stettin zusammen.
Steuerliche Vorteile
Beim Erwerb von Bestandsimmobilien fällt lediglich eine geringe Grunderwerbsteuer an, die bei Immobilien auf dem Zweitmarkt 2% und bei Immobilien auf dem Erstmarkt 0% beträgt. Darüber hinaus richtet sich die Grundsteuer in Polen nach der Fläche und ist äußerst niedrig.