Neubau-Doppelhaushälfte mit Garten in ruhiger Wohnlage von Daber
248,000 €
Beschreibung
Moderner Doppelhaushälfte in grüner Lage in Dobra – Neubau mit hochwertiger Ausstattung
Willkommen in Ihrem neuen Zuhause! Diese moderne Doppelhaushälfte befindet sich in einem gepflegten Wohnviertel in Dobra – umgeben von Einfamilienhäusern und mit vollständigem Anschluss an städtische Medien.
Das Haus bietet eine Gesamtfläche von 133,49 m² auf einem 340 m² großen Grundstück. Die Zufahrt zum Grundstück erfolgt über eine Asphaltstraße mit Einfahrt aus Pflasterstein. Zwei private Stellplätze vor dem Haus bieten zusätzlichen Komfort.
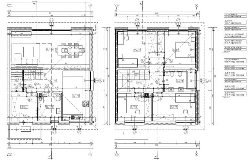
Raumaufteilung
Die durchdachte Raumgestaltung erstreckt sich über zwei Ebenen:
Erdgeschoss: - Geräumiger Wohn-Essbereich – 30,34 m² - Offene Küche mit viel Platz – 13,45 m² - Badezimmer – 6,19 m² - Windfang – 7,53 m² - Flur – 6,83 m² - Hauswirtschaftsraum – 1,93 m²
Obergeschoss: - Vier vielseitig nutzbare Zimmer – 13,45 m², 13,30 m², 12,21 m², 9,41 m² - Flur – 11,98 m² - Zweites Badezimmer – 6,80 m²
Zusätzlichen Stauraum oder kreative Entfaltungsmöglichkeiten bietet der Dachboden mit ca. 12 m² nutzbarer Fläche.
Ausstattungsmerkmale – bezugsfertig im modernen Baustandard
- Effiziente Wärmepumpe von York
- Fußbodenheizung im gesamten Haus
- Vorinstallation für Photovoltaik
- Wärmedämmung mit 20 cm starkem Graphit-Styropor
- Dreifachverglaste Fenster von REHAU mit warmem Einbau und HST-Fenster im Wohnzimmer – für optimalen Lichteinfall und thermische Effizienz
- Dach- und Deckenisolierung mittels PUR-Schaum
- Elektrische Außenrollläden im Erdgeschoss
- Einbruchhemmende Eingangstür mit Edelstahlgriff
- Elektrosystem mit weißem Schalterprogramm
- Elegant gegossene Betontreppe zum Obergeschoss
- Technische Treppe zum Dachboden
- Trennwand zwischen beiden Haushälften als doppelte Wand mit Dehnfuge – für optimalen Schallschutz
- Silikon-Außenputz in Weiß – moderne Gebäudeoptik
- Außenanlagen mit gepflastertem Hauseingang, Zufahrt und Terrassen
- Gartenbereich mit Zugang über Nebentor
- Eingezäuntes Grundstück mit modernen Stabgitterpanelen
- Voll erschlossene Infrastruktur: Wege und Zufahrten rund ums Haus aus Pflasterstein
Dieses Haus ist perfekt für alle, die stilvoll und effizient wohnen möchten – ruhig gelegen und doch gut angebunden. Bezugsfertig ab 2025, in einer zukunftsorientierten Bauweise, die keine Wünsche offenlässt.
Nutzen Sie diese Gelegenheit, um Ihr Traumhaus in einer der gefragtesten Wohngegenden von Dobra zu sichern!
Nebenkosten bei Kauf: - Keine weiteren Steuern angegeben - Schätzkosten wie Verwaltungsgebühren sind nicht enthalten
Wir freuen uns auf Ihre Anfrage für eine Besichtigung!
Details
Haustyp: Doppelhaushälfte
Gesamtfläche: 133,49 m²
Grundstücksfläche: 340,00 m²
Nutzfläche: 133,49 m²
Baujahr: 2025
Standard: Ausbauzustand – Entwicklerstandard
Bauzustand: Ausbauzustand – Entwicklerstandard
Bauweise: Silikatstein
Küchentyp: Offene Küche
Anzahl der Badezimmer: 2
Etagenanzahl (inkl. Erdgeschoss): 1
Heizsystem: Wärmepumpe
Stromversorgung: Ja
400V Stromanschluss (Drehstrom): Ja
Abwasser: Öffentliches Abwassersystem
Wasserversorgung: Städtisches Wasser
Fenster: Kunststofffenster
Dacheindeckung: Dachziegel
Grundstückseinfriedung: Drahtzaun
Garage: Ja
Garten: Ja
Zusätzliche Informationen:
Das Haus wird in modernem Entwicklerstandard erstellt. Es zeichnet sich durch energieeffiziente Ausstattung aus, darunter eine Wärmepumpe für Heizung und Warmwasser sowie Kunststofffenster. Der 400V Drehstromanschluss ist vorhanden. Dank offener Küche und zwei Badezimmern eignet sich das Objekt perfekt für Familien. Die Immobilie verfügt über eine Garage und einen eigenen Garten auf einem 340 m² großen Grundstück.
Preisbeispiel:
Beispielkosten für Notarleistungen: €1.650 (PLN 7.000)
Hinweis
- Das erste Foto in unserer Galerie wurde leicht bearbeitet, um zu veranschaulichen, wie die Wohnung aussehen könnte – beispielsweise durch eine geänderte Wandfarbe. Die nachfolgenden Bilder zeigen den tatsächlichen Zustand der Immobilie.
- Der in Euro angegebene Preis entspricht dem Preis in Złoty, stellt jedoch aufgrund von Wechselkursschwankungen stets einen Näherungswert dar. In unseren Anzeigen ist stets auch der vom Verkäufer gewünschte Preis in Złoty angegeben.
Hinweise zur polnischen Immobilienpraxis:
- Begrenzte Objektinformationen: In Polen ist es üblich, dass Immobilienanzeigen nicht den genauen Standort der Immobilie preisgeben.
- Grundrisse: Detaillierte Grundrisse werden in Exposés nicht immer bereitgestellt.
Als Immobilienbüro bieten wir deutschsprachigen Kunden eine umfassende Betreuung an. Wir vertreten Sie als Käufer.
Wir arbeiten mit geprüften Partnern zusammen (Immobilienbewertung, Steuerliche und rechtliche Beratung, Vereidigte Übersetzungen, Renovierung sanierungsbedürftiger Objekte).
Bei Kapitalanlagen übernehmen wir auch die Verwaltung der Immobilie.
Persönliche Begleitung – transparent, kompetent und auf Deutsch.
Eigenschaften der Immobilie
- Garage
- Garten
Diese Immobilien könnten Sie ebenfalls interessieren
Über uns
Willkommen bei Ihrem Immobilienpartner in Stettin und Westpommern!
Wir sind ein engagiertes Immobilienbüro mit langjähriger Erfahrung auf dem lokalen Markt. In unserem Angebot finden Sie eine große Auswahl an Immobilien in Stettin sowie attraktive Objekte an der polnischen Ostseeküste – ob zum Wohnen, als Kapitalanlage oder zur Feriennutzung.
Wir sprechen Deutsch und begleiten Sie gerne professionell durch den gesamten Kauf- oder Verkaufsprozess. Ob Wohnung, Haus, Grundstück oder Ferienimmobilie – wir finden garantiert die passende Adresse für Sie!
Besuchen Sie uns auf eine Tasse Kaffee in unserem Büro oder nehmen Sie einfach Kontakt mit uns auf. Wir freuen uns auf Sie!
Zusammenarbeit mit uns
Wir sind ein Immobilienbüro, das mit Maklerbüros in der Woiwodschaft Westpommern in Polen zusammenarbeitet. Dabei vertreten wir stets nur eine Seite der Transaktion – nämlich den Kunden aus Deutschland und den DACH-Ländern. In seinem Namen verhandeln wir den Preis, prüfen das Angebot und übernehmen sämtliche Formalitäten.
Auch nach dem Kauf stehen wir unseren Kunden beratend zur Seite und bleiben mit ihnen in Kontakt. Auf Wunsch unterstützen wir auch bei der Renovierung oder umfassenden Sanierung der Immobilie. Darüber hinaus bieten wir die Verwaltung von vermieteten Immobilien an – im Raum Stettin und der näheren Umgebung.
Wir legen großen Wert auf klare Regeln und ein faires Miteinander. Unsere Provision entspricht den in Polen üblichen Sätzen: 3.69% des Kaufpreises bei Wohnungen und Häusern sowie 6,15% bei Grundstücken. Die Provision wird beim Notar im Rahmen der Vertragsunterzeichnung fällig und bezahlt.
Wir arbeiten mit einer renommierten deutschsprachigen Notarkanzlei in Stettin zusammen.
Steuerliche Vorteile
Beim Erwerb von Bestandsimmobilien fällt lediglich eine geringe Grunderwerbsteuer an, die bei Immobilien auf dem Zweitmarkt 2% und bei Immobilien auf dem Erstmarkt 0% beträgt. Darüber hinaus richtet sich die Grundsteuer in Polen nach der Fläche und ist äußerst niedrig.