Familienfreundliches Einfamilienhaus mit Garten in ruhiger Lage von Stettin-Gumieńce
413,000 €
Beschreibung
Charmantes Einfamilienhaus in ruhiger Lage von Gumieńce
Entdecken Sie dieses äußerst komfortable und funktionale Einfamilienhaus aus dem Jahr 2000, eingebettet in eine ruhige Wohngegend von Gumieńce. Die Immobilie liegt an einer wenig befahrenen Straße, umgeben von viel Grün, Einfamilienhäusern und gepflegten Naherholungsflächen – ein perfekter Ort für Familien, die Komfort und Ruhe schätzen.
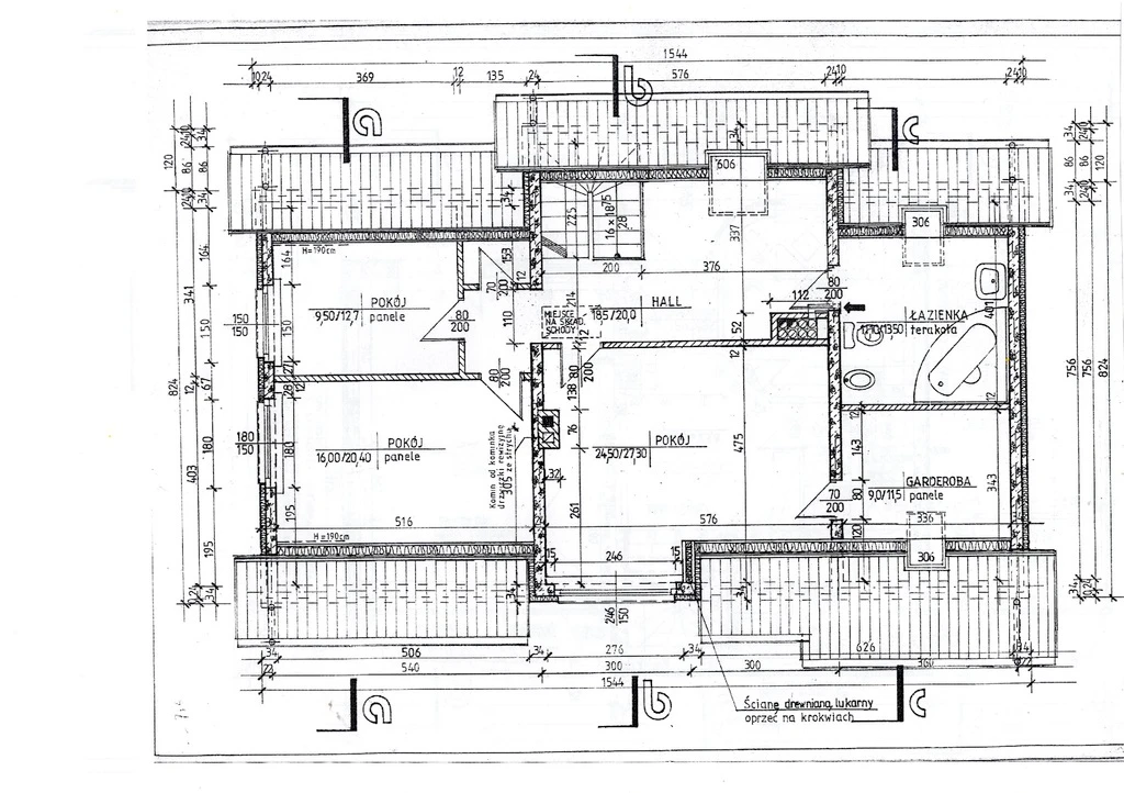
Raumaufteilung und Ausstattung
Wohnfläche: 189,5 m²
Gesamtfläche: 250 m²
Grundstücksgröße: 492 m²
Erdgeschoss (93,5 m²)
- Geräumiger Wohnbereich (32 m²): Mit Kamin und direktem Zugang zur sonnigen Terrasse (16 m²) sowie in den liebevoll gestalteten Garten mit Bäumen und Ziersträuchern.
- Diele (10,5 m²): Elegant offen zum Wohnbereich gestaltet, mit Zugang zur Küche, Gäste-WC sowie den Wirtschaftsräumen.
- Separate Küche (13,5 m²): Quadratisch geschnitten, mit Fenster; ausgestattet mit Einbauküche, Kühlschrank, 60 cm Geschirrspüler von WHIRLPOOL, Elektroherd mit Cerankochfeld und Backofen von AMICA sowie Dunstabzugshaube; mit Esstisch und Stühlen.
- Gäste-WC (2,6 m²): Mit Waschbecken.
- Wirtschaftsbereiche:
- Waschküche (10,5 m²): Mit Badewanne, Waschmaschine, Gastherme von BUDERUS (neu vor ca. 3 Jahren) und Warmwasserspeicher (118 l).
- Speisekammer (5,2 m²): Mit zusätzlichem Kühlschrank.
- Garage (19,2 m²): Mit Platz für ein Auto, elektrisch bedienbares Kipptor.
- Windfang (2,4 m²): Mit Terrakottaboden.
Obergeschoss (88 m²)
- Hauptschlafzimmer (24,5 m² Bodenfläche: 27,3 m²): Mit Zugang zum Ankleideraum.
- Ankleiderschrank (9 m² / Bodenfläche: 11,5 m²): Mit Dachflächenfenster.
- Zwei zusätzliche Zimmer:
- Zimmer 1: 16 m² (Bodenfläche: 20,4 m²)
- Zimmer 2: 9,5 m² (Bodenfläche: 12,7 m²)
- Offener Loungebereich im Flur (18,5 m² / Bodenfläche: 20 m²): Mit Dachflächenfenster.
- Badezimmer (11,1 m² / Bodenfläche: 13,5 m²): Mit Badewanne, Bidet, WC, Waschtisch, Dachflächenfenster und Möglichkeit zum Einbau einer Dusche.
- Kleine Garderobe unter der Schräge ohne Fenster.
Im Obergeschoss verfügen alle Zimmer (außer Bad, Ankleide und Garderobe) über vollformatige Fenster.
Dachgeschoss
- Zugang über ausklappbare Treppe vom Flur.
- Drei praktische Abstellräume mit Dachfenstern.
- Höhe im First: 2,65 m
- Dach sowie oberste Geschossdecke sind gedämmt.
Bauweise und Ausstattung
- Baumaterial: Massive Betonblockbauweise
- Dach: Steildach mit Metall-Dachziegeln
- Fenster: Moderne, doppelt verglaste Holzfenster von VELUX, teilweise Dachflächenfenster; Holzfensterbänke
- Sanitärräume: Wand- und Bodenfliesen
- Fußböden in Technikräumen: Terrakotta
- Heizung: Gasheizung
- Sicherheit: Einbruchschutz-Haustür, einbruchhemmende Rollläden im Erdgeschoss (fernbedienbar), Alarmanlage, Videoüberwachung
- Garage: Integriert, mit Platz für Auto und Zweirad, elektrisches Kipptor
- Zufahrtstor: Elektrisch bedienbar
- Grundstück: Umzäunt, gepflegter Garten mit dekorativen Pflanzen
Weitere Extras
- Möglichkeit der Übernahme oder Entfernung der Möbel nach Absprache
- Stromanschluss mit 400V verfügbar
- Internetanschluss vorhanden
Verfügbarkeit ab: 02.11.2025
Ein Zuhause, das sowohl durch Komfort als auch durch seine ruhige und grüne Lage überzeugt – ideal für Familien mit mehreren Generationen. Lassen Sie sich begeistern von einem durchdachten Wohnkonzept, hochwertigen Ausstattungsdetails und einem herrlichen Garten – hier wartet Ihr neues Heim auf Sie.
Details
Freistehendes Einfamilienhaus in Gumieńce – verfügbar ab dem 02.11.2025
Zum Verkauf steht ein großzügiges Einfamilienhaus in sehr gutem Zustand im beliebten Stadtteil Gumieńce. Das Haus wurde im Jahr 2000 erbaut und überzeugt durch eine durchdachte Raumaufteilung sowie hochwertige Ausstattung.
Grundstück und Gebäude - Grundstücksfläche: 492,00 m² (rechteckig) - Gesamtfläche des Hauses: 250,00 m² - Nutzfläche: 189,50 m² - Bauweise: Betonblock - Dachdeckung: Blechdachpfanne - Geschosse: 1 (inkl. Erdgeschoss) - Bauzustand: sehr gut - Eigentumsform des Grundstücks: Eigentum
Räume und Ausstattung
- Wohnzimmer: 32 m²
- Zimmer: 24,5 m² + 16 m² + 9,5 m²
- Küche (separat): 13,5 m²
Ausgestattet mit Kühlschrank, Elektroherd, Backofen und Geschirrspüler
- Badezimmer: 11,1 m²
Ausgestattet mit WC, Bidet, Handtuchheizkörper, Waschbecken, Fenster, Badewanne
- Zusätzliches WC: 2,6 m²
- Garderobe
- Kamin
- Terrasse: 16 m²
- Garten
Technische Anschlüsse und Ausstattung - Stromanschluss vorhanden (inkl. 400V) - Gasanschluss vorhanden - Internetanschluss - Videoüberwachung
Garage und Parken - Garage vorhanden - Anzahl der Garagenstellplätze: 1
Ein gepflegtes Zuhause mit hochwertiger Ausstattung, das keine Wünsche offen lässt – ideal für Familien, die Ruhe und Komfort in einer gefragten Wohngegend suchen.
Hinweis
- Das erste Foto in unserer Galerie wurde leicht bearbeitet, um zu veranschaulichen, wie die Wohnung aussehen könnte – beispielsweise durch eine geänderte Wandfarbe. Die nachfolgenden Bilder zeigen den tatsächlichen Zustand der Immobilie.
- Der in Euro angegebene Preis entspricht dem Preis in Złoty, stellt jedoch aufgrund von Wechselkursschwankungen stets einen Näherungswert dar. In unseren Anzeigen ist stets auch der vom Verkäufer gewünschte Preis in Złoty angegeben.
Hinweise zur polnischen Immobilienpraxis:
- Begrenzte Objektinformationen: In Polen ist es üblich, dass Immobilienanzeigen nicht den genauen Standort der Immobilie preisgeben.
- Grundrisse: Detaillierte Grundrisse werden in Exposés nicht immer bereitgestellt.
Als Immobilienbüro bieten wir deutschsprachigen Kunden eine umfassende Betreuung an. Wir vertreten Sie als Käufer.
Wir arbeiten mit geprüften Partnern zusammen (Immobilienbewertung, Steuerliche und rechtliche Beratung, Vereidigte Übersetzungen, Renovierung sanierungsbedürftiger Objekte).
Bei Kapitalanlagen übernehmen wir auch die Verwaltung der Immobilie.
Persönliche Begleitung – transparent, kompetent und auf Deutsch.
Eigenschaften der Immobilie
- Gas
- Garage
- Garten
- Garderobe
- Kamin
- Terrasse
- Keller
- Aufzug
Diese Immobilien könnten Sie ebenfalls interessieren
Über uns
Willkommen bei Ihrem Immobilienpartner in Stettin und Westpommern!
Wir sind ein engagiertes Immobilienbüro mit langjähriger Erfahrung auf dem lokalen Markt. In unserem Angebot finden Sie eine große Auswahl an Immobilien in Stettin sowie attraktive Objekte an der polnischen Ostseeküste – ob zum Wohnen, als Kapitalanlage oder zur Feriennutzung.
Wir sprechen Deutsch und begleiten Sie gerne professionell durch den gesamten Kauf- oder Verkaufsprozess. Ob Wohnung, Haus, Grundstück oder Ferienimmobilie – wir finden garantiert die passende Adresse für Sie!
Besuchen Sie uns auf eine Tasse Kaffee in unserem Büro oder nehmen Sie einfach Kontakt mit uns auf. Wir freuen uns auf Sie!
Zusammenarbeit mit uns
Wir sind ein Immobilienbüro, das mit Maklerbüros in der Woiwodschaft Westpommern in Polen zusammenarbeitet. Dabei vertreten wir stets nur eine Seite der Transaktion – nämlich den Kunden aus Deutschland und den DACH-Ländern. In seinem Namen verhandeln wir den Preis, prüfen das Angebot und übernehmen sämtliche Formalitäten.
Auch nach dem Kauf stehen wir unseren Kunden beratend zur Seite und bleiben mit ihnen in Kontakt. Auf Wunsch unterstützen wir auch bei der Renovierung oder umfassenden Sanierung der Immobilie. Darüber hinaus bieten wir die Verwaltung von vermieteten Immobilien an – im Raum Stettin und der näheren Umgebung.
Wir legen großen Wert auf klare Regeln und ein faires Miteinander. Unsere Provision entspricht den in Polen üblichen Sätzen: 3.69% des Kaufpreises bei Wohnungen und Häusern sowie 6,15% bei Grundstücken. Die Provision wird beim Notar im Rahmen der Vertragsunterzeichnung fällig und bezahlt.
Wir arbeiten mit einer renommierten deutschsprachigen Notarkanzlei in Stettin zusammen.
Steuerliche Vorteile
Beim Erwerb von Bestandsimmobilien fällt lediglich eine geringe Grunderwerbsteuer an, die bei Immobilien auf dem Zweitmarkt 2% und bei Immobilien auf dem Erstmarkt 0% beträgt. Darüber hinaus richtet sich die Grundsteuer in Polen nach der Fläche und ist äußerst niedrig.