Modernes Doppelhaus in Möhringen: Familienfreundliches Wohnen nahe Natur und Infrastruktur
274,000 €
Beschreibung
Modernes Doppelhaus in attraktiver Lage – bezugsfertig 2025
Willkommen in Ihrem neuen Zuhause! Dieses moderne Doppelhaus entsteht auf einem großzügigen, rechteckigen Grundstück mit einer Fläche von 329 m² – perfekt für Familien oder alle, die Wert auf Komfort, Energieeffizienz und modernes Design legen. Die ruhige, flache Lage bietet ideale Bedingungen für entspanntes Wohnen in naturnaher Umgebung.
Eckdaten zum Haus:
- Wohnfläche: 100,70 m²
- Grundstücksfläche: 329,00 m²
- Typ: Doppelhaushälfte
- Baujahr: 2025
- Zustand: im modernen, hochwertigen Baustandard (Ausbauhaus)
- Etagenanzahl: 1 + ausgebautes Dachgeschoss
- Material: massive Bauweise mit Ziegelmauerwerk
- Dach: Flachdach mit keramischen Dachziegeln in elegantem Anthrazit
- Fenster: Kunststofffenster, 3-fach verglast (Profil Salamander), mit elektrischem Rollladensystem
- Terrassentüren: Hebe-Schiebetürsystem (HS-System) in Anthrazitfarben
- Heizung: moderne Luft-Wasser-Wärmepumpe
- Energieversorgung: Stromanschluss (400V), Gasanschluss vorhanden
- Wasser & Abwasser: städtische Versorgung
- Internet, Kabel-TV, Alarmanlage, Videovorbereitung: bereits installiert
- Außenbereich: Garten am hinteren Teil des Hauses, Garage, Zufahrt & Gehwege mit Rasengittersteinen & Pflastersteinen
- Eingezäuntes Grundstück
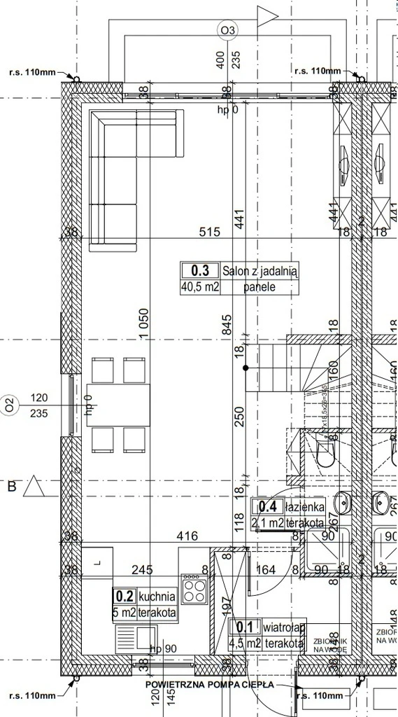
Raumaufteilung:
Erdgeschoss:
- Hell und offen gestalteter Wohn- und Essbereich mit ca. 40,5 m²
- Küche mit Fenster – ca. 5 m²
- Garderobe – ca. 2,8 m²
- Gäste-WC – ca. 2,1 m²
- Hauswirtschaftsraum – ca. 0,7 m²
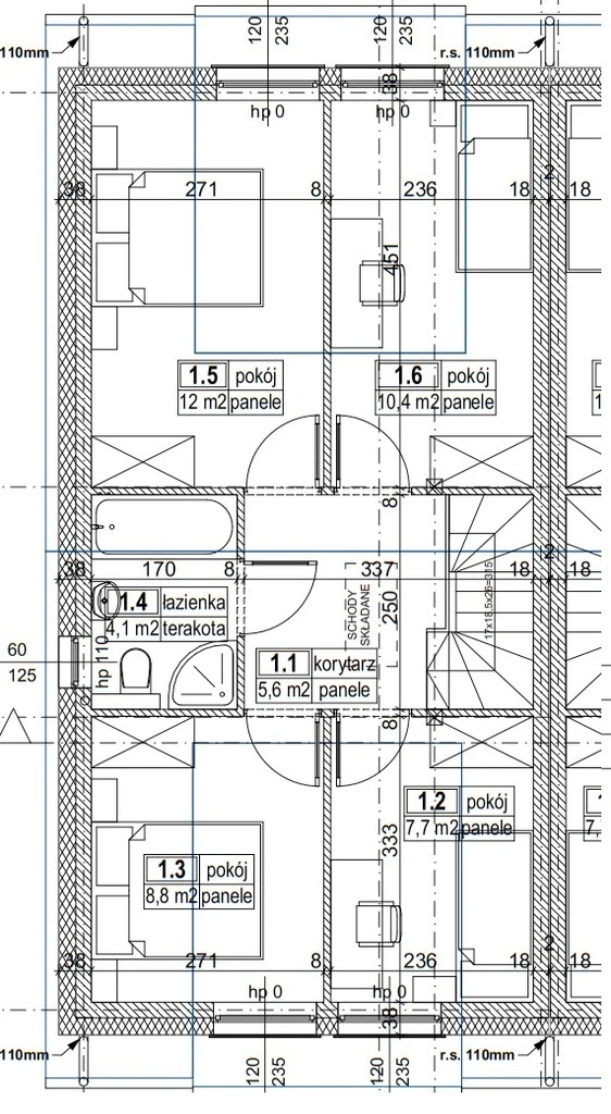
Obergeschoss:
- Schlafzimmer 1: ca. 12,0 m²
- Schlafzimmer 2: ca. 10,4 m²
- Schlafzimmer 3: ca. 8,8 m²
- Schlafzimmer 4 / Büro: ca. 7,7 m²
- Bad mit WC: ca. 4,1 m²
Highlights der Ausstattung:
- Solide gemauerte Wände – kein Kontakt zu Nachbar durch spezielle Dämmung (Styroportrennung: 18+2+18 cm)
- Wärmedämmende Fassade mit mineralischem Edelputz & PVC-Holzoptik-Paneelen
- Alle notwendigen Installationen vorbereitet: Wasser, Abwasser, Elektrik inkl. Kamera- und Alarminstallation
- Holz-Klapptreppe zum Dachboden
- Dachboden mit Gipskartondecke, bereits verspachtelt
- Fußboden aus geglättetem Beton
Lage & Umgebung:
Die Immobilie liegt in einem ruhigen Wohngebiet mit sehr guter Infrastruktur. Alles Wichtige ist bequem erreichbar:
- Öffentliche Verkehrsmittel, Schulen, Kindergärten und Universitäten in unmittelbarer Nähe
- Wald, Spielplatz und Apotheke fußläufig erreichbar
Dieses Haus ist ideal für anspruchsvolle Käufer, die ein modernes Zuhause in einer ruhigen und gleichzeitig bestens angebundenen Umgebung suchen. Es bietet hervorragende Voraussetzungen für ein komfortables Familienleben.
Vereinbaren Sie gerne einen Besichtigungstermin – Ihr neues Zuhause wartet auf Sie!
Details
Haus zum Verkauf – Doppelhaushälfte im modernen Baustandard
Allgemeine Informationen:
- Immobilientyp: Doppelhaushälfte
- Baujahr: 2025
- Gesamtfläche: 100,60 m²
- Nutzfläche: 100,70 m²
- Grundstücksfläche: 329,00 m²
- Grundstücksform: Rechteckig
- Grundstückslage: Flaches Gelände
Ausstattung & Bauweise:
- Standard: Entwicklertzustand
- Bauweise: Ziegelmauerwerk
- Dachbedeckung: Keramikziegel
- Bodenbelag: Beton
- Fenster: Kunststofffenster
- Anzahl der Etagen (inkl. EG): 1
- Dachgeschoss: Ausgebaut
Innenausstattung:
- Küche mit Fenster, Fläche: 5 m²
- 2 Badezimmer (Flächen: 2,1 m² und 4,1 m²)
- Zimmergrößen: 40,5 m², 12 m², 10,4 m², 8,8 m², 7,7 m²
- Garderobe: vorhanden
Technische Ausstattung:
- Heizung: Wärmepumpe
- Elektrizität: vorhanden
- Starkstromanschluss (400V): vorhanden
- Wasseranschluss: städtisch
- Abwasser: städtisch
- Gasanschluss: vorhanden
- Lüftung: vorhanden
- Internet: verfügbar
- Kabelfernsehen: verfügbar
- Alarmanlage: vorhanden
- Videoüberwachung: vorhanden
Außenbereich:
- Garage: vorhanden
- Garten: vorhanden
- Zaun: Maschendrahtzaun
- Zufahrt: Ruhige Straße
Lage & Umgebung: - In der Nähe: Kindergarten, Grundschule, Hochschule, Wald, öffentlicher Nahverkehr, Spielplatz, Apotheke
Zusätzliche Kosten:
- Preis für Wärmepumpe inkl. unterirdischem Speicher: €7.100 (PLN 30.000)
- Preis für Fußbodenheizung: €3.550 (PLN 15.000)
- Preis für Trennzaun mit Fundamenten: €1.180 (PLN 5.000)
- Preis für Elektroinstallation Ready-to-operate: €1.180 (PLN 5.000)
- Preis für SAT- und Netzwerkverkabelung (LAN): €470 (PLN 2.000)
- Preis für Trennwand im Dachgeschoss: €590 (PLN 2.500)
Erleben Sie ein modernes und energiesparendes Zuhause, ideal für Familien, in ruhiger, gut angebundener Lage mit umfangreicher Infrastruktur in der Nähe.
Hinweis
- Das erste Foto in unserer Galerie wurde leicht bearbeitet, um zu veranschaulichen, wie die Wohnung aussehen könnte – beispielsweise durch eine geänderte Wandfarbe. Die nachfolgenden Bilder zeigen den tatsächlichen Zustand der Immobilie.
- Der in Euro angegebene Preis entspricht dem Preis in Złoty, stellt jedoch aufgrund von Wechselkursschwankungen stets einen Näherungswert dar. In unseren Anzeigen ist stets auch der vom Verkäufer gewünschte Preis in Złoty angegeben.
Hinweise zur polnischen Immobilienpraxis:
- Begrenzte Objektinformationen: In Polen ist es üblich, dass Immobilienanzeigen nicht den genauen Standort der Immobilie preisgeben.
- Grundrisse: Detaillierte Grundrisse werden in Exposés nicht immer bereitgestellt.
Als Immobilienbüro bieten wir deutschsprachigen Kunden eine umfassende Betreuung an. Wir vertreten Sie als Käufer.
Wir arbeiten mit geprüften Partnern zusammen (Immobilienbewertung, Steuerliche und rechtliche Beratung, Vereidigte Übersetzungen, Renovierung sanierungsbedürftiger Objekte).
Bei Kapitalanlagen übernehmen wir auch die Verwaltung der Immobilie.
Persönliche Begleitung – transparent, kompetent und auf Deutsch.
Eigenschaften der Immobilie
- Gas
- Garage
- Garten
- Garderobe
Diese Immobilien könnten Sie ebenfalls interessieren
Über uns
Willkommen bei Ihrem Immobilienpartner in Stettin und Westpommern!
Wir sind ein engagiertes Immobilienbüro mit langjähriger Erfahrung auf dem lokalen Markt. In unserem Angebot finden Sie eine große Auswahl an Immobilien in Stettin sowie attraktive Objekte an der polnischen Ostseeküste – ob zum Wohnen, als Kapitalanlage oder zur Feriennutzung.
Wir sprechen Deutsch und begleiten Sie gerne professionell durch den gesamten Kauf- oder Verkaufsprozess. Ob Wohnung, Haus, Grundstück oder Ferienimmobilie – wir finden garantiert die passende Adresse für Sie!
Besuchen Sie uns auf eine Tasse Kaffee in unserem Büro oder nehmen Sie einfach Kontakt mit uns auf. Wir freuen uns auf Sie!
Zusammenarbeit mit uns
Wir sind ein Immobilienbüro, das mit Maklerbüros in der Woiwodschaft Westpommern in Polen zusammenarbeitet. Dabei vertreten wir stets nur eine Seite der Transaktion – nämlich den Kunden aus Deutschland und den DACH-Ländern. In seinem Namen verhandeln wir den Preis, prüfen das Angebot und übernehmen sämtliche Formalitäten.
Auch nach dem Kauf stehen wir unseren Kunden beratend zur Seite und bleiben mit ihnen in Kontakt. Auf Wunsch unterstützen wir auch bei der Renovierung oder umfassenden Sanierung der Immobilie. Darüber hinaus bieten wir die Verwaltung von vermieteten Immobilien an – im Raum Stettin und der näheren Umgebung.
Wir legen großen Wert auf klare Regeln und ein faires Miteinander. Unsere Provision entspricht den in Polen üblichen Sätzen: 3.69% des Kaufpreises bei Wohnungen und Häusern sowie 6,15% bei Grundstücken. Die Provision wird beim Notar im Rahmen der Vertragsunterzeichnung fällig und bezahlt.
Wir arbeiten mit einer renommierten deutschsprachigen Notarkanzlei in Stettin zusammen.
Steuerliche Vorteile
Beim Erwerb von Bestandsimmobilien fällt lediglich eine geringe Grunderwerbsteuer an, die bei Immobilien auf dem Zweitmarkt 2% und bei Immobilien auf dem Erstmarkt 0% beträgt. Darüber hinaus richtet sich die Grundsteuer in Polen nach der Fläche und ist äußerst niedrig.